Особенности плюсы и минусы отмостки из бетона?
Этот вариант распространен больше других, поэтому про ее плюсы и минусы можно говорить много. Что касается достоинств, то такая отмостка доступна для изготовления самому. Купили необходимое сырьё, обзавелись инструментом и вполне можно выполнять работу своими руками. В конечном счете, вы сможете сэкономить до 50% от общих положений в проект.
Правильная работа сделает дом законченным. Влага, которая будет подходить к фундаменту, полностью сойдет на нет. Цоколь не промерзнет, вы сможете защитить его от разрушения при пучении грунта. Цена на изготовление отмостки доступна. Она получается дешевле отмостки из тротуарной плитки на 30%.

Отмостка вокруг дома из бетона
И самое главное, в работе не нужен в дорогостоящий инструмент, такой как виброплита, применяемая для укладки плитки в качестве отмостки. Здесь все делается подручными средствами, в основном из материала, который остался от основной работы.
Среди недостатков хотелось бы указать именно целостность поверхности. Из-за того, что основание не эластично, не имеет возможности дышать при выталкивании грунта на поверхность, через время отмостка вокруг дома из бетона лопнет. Это нормально, что появятся трещины.
Свою функцию при этом она не потеряет. Другой недостаток заключается «в инородности» этого материала относительно общего ландшафтного дизайна. Именно из-за этого свойства отмостка постепенно сходит на нет. Сегодня все чаще переходят к применению плитки.
Какой нужен инструмент для изготовления отмостки?
Отмостка своими руками делается несложно, но для этого потребуется нижеперечисленный инструмент:
- Лопата, совковая и штыковая. Измерительная рулетка, колышки, шнурка.
- Ножницы по металлу для работы с металлической сеткой, которую придется подгонять под размер.
- Шуруповерт, саморезы по дереву, карандаш для разметки досок, ножовка по дереву или электрический лобзик.
- Острый нож с плотным лезвием. Он потребуется для работы с пеноплексом, в части его подгонки под размеры.
- Бетономешалка для замешивания раствора. Потребуется кельма, мастерок, а также правило для работы с поверхностью стяжки.
Для укладки тротуарной плитки потребуется специальная киянка, уровень, а также инструмент для утрамбовывания поверхности.
Процесс согласования
Подготовленный проект передается для одобрения в следующие инстанции:
- Орган архитектуры и градостроительства.
- Областное отделение МЧС.
- Местное отделение МВД.
- Станция неотложной медицинской помощи.
Следующий этап – выбор подрядчика. Деньги на монтаж ограждения могут быть получены непосредственно от самих жильцов либо вычитаются из средств, внесенных на ремонт многоквартирного здания и его обустройство.
При возведении ограждения должны быть соблюдены следующие требования:
- не должно создавать препятствий для подъезда автомобилей скорой помощи, пожарных бригад и других экстренных служб;
- не должно препятствовать быстрой эвакуации, находящихся в доме лиц;
- при необходимости может быть демонтировано (в случае проведения ремонта подземных коммуникаций);
- не должно препятствовать доступу к коммуникационным системам (водопровод, телефонный и электрический кабель);
- не может нарушать пешеходные связи (перекрывать пешеходные дорожки, тротуары);
- не должно ограничивать возможность проезда к другим зданиям.
Муниципальными органами могут устанавливаться дополнительные требования:
- высота не может превышать 2 м (для спортивных и детских площадок до 3 м);
- прозрачность должна составлять не менее 50%;
- ограждение должно изготавливается из металлического материала;
- исключено наличие острых выступающих частей.
Ошибка №3. Нарушение регламента выполнения бетонных работ
Печальным следствием ошибок такого рода станет появление трещин по бетонной поверхности отмостки. Чем они грозят конструкции фундамента, догадаться нетрудно даже далекому от строительства дачнику.
Изготовление бетона выполняйте строго по правилам
Состав бетонной смеси наверняка известен каждому дачнику: цемент, крупный заполнитель (щебень фракции до 20 мм), мелкий заполнитель (песок), вода. Тогда откуда же столько ошибок на дачном горизонте? Ответ ясен: во-первых, ошибки кроются в неправильном алгоритме перемешивания. Во-вторых, в нарушении весового соотношения компонентов: такое частенько случается, если их отмеривают на глазок. От подобного легкомыслия специалисты настоятельно рекомендуют отказаться. Изготовление бетона — не тот случай, когда можно рассчитывать на авось. Точно дозировать компоненты можно даже в дачных условиях. Чем? По-моему, лучше обычных ведер еще ничего не придумано, а если вдобавок использовать безмен (пусть самый простенький), точность взвешивания будет достаточной.
Трещины отмостки — результат неправильно приготовленной бетонной смеси
Пропорции бетонной смеси
Традиционно пропорции смеси рассчитываются исходя из 1 м³ готового замеса. В качестве примера предлагаю рассчитать пропорции для бетона М 250 (популярнейшая марка смеси для малоэтажного строительства). Для получения 1 м³ раствора М 250 понадобится:
- цемент марки М 400 – 332 кг;
- щебень – 1080 кг;
- песок – 750 кг;
- вода – около 215 л.
Последовательность смешивания компонентов
Важна также последовательность смешения компонентов. Тут не может быть самодеятельности и изобретать ничего не надо – все уже изобретено до нас и давно проверено на практике. Специалисты считают, что сначала должны быть смешаны все сухие компоненты, а вода добавляется потом.
Время перемешивания
Долго ли надо вращать грушу бытового бетоносмесителя? Для перемешивания сухих компонентов достаточно 2-х минут, а после постепенного добавления воды – еще 2 минуты.
Важна не только последовательность добавления компонентов, но и время перемешивания
Исключите появление трещин
При заливке бетонной смеси в опалубку предусмотрите прокладку поперек ленты отмостки тонких деревянных брусков, которые будут играть роль температурных компенсационных швов. Они (бруски) – главный козырь в «борьбе» с трещинообразованием бетона.
Уплотнение и наклон
Заключительный этап бетонирования – уплотнение бетонной смеси и придание наклона в поперечном направлении. Придется арендовать виброплиту, работа которой обеспечит высокое качество финишных работ.
Подготовка к строительству
Когда возводится отмостка своими руками, пошаговая инструкция поможет провести все этапы строительства правильно. Первый этап – подготовительный, когда определяются все параметры конструкции, включая материал и размеры. Основным показателем является ширина полосы – согласно рекомендациям, она должна быть не меньше, чем 60 сантиметров. Перед окончательным выбором проекта необходимо учесть ряд факторов, способных повлиять на её габаритные размеры:
- Особенности кровли, карнизов, дальность выноса.Сделать отмостку на 20-30 сантиметров длиннее, чем вынос кровли.
- Архитектурные и дизайнерские особенности здания. Если в конструкции дома есть архитектурные элементы с ломаной или закругленной формой, исполнение отмостки можно сделать соответствующим, организовав связку с другими строениями и элементами оформления прилегающего участка.
- Тип грунта на месте строительства отмостки. Если грунт характеризуется значительной степенью просадки, оптимальная ширина – не менее 90 сантиметров или даже 1 метр. Ширина более метра – высокая эффективность водоотведения и возможность использования её как окружной дорожки.
Главное условие – устройство отмостки должно быть таким, чтобы фундамент дома и цоколь получили надежную защиту от воздействия влаги (непрерывная конструкция).
Определение уклона
Качественная и надежная конструкция получается при соблюдении требований к уклону, так как это обеспечит надежный отвод воды.Уклон отмостки дома к грунту, согласно рекомендациям, составляет от 1,5 до 5 градусов. Точное значение определяется на основании особенностей климата в регионе и используемого декоративного покрытия.

Если основным материалом является щебень, конструкции потребуется больший уклон отмостки, чем при использовании брусчатки или тротуарной плитки. Сформировать угол можно изначально (разместив основание с наклоном), или уже при работе с декоративным покрытием – последним наружным слоем.
Строительные материалы
Когда все особенности проекта определены, можно приступать к расчету количества стройматериалов, а также подобрать соответствующий инструмент и другое строительное оборудование. В слое подстилки во всех случаях должен присутствовать песок и щебень. Для отдельных типов грунта рекомендуется использовать в подстилке глину, которая одновременно выступает как средство для гидроизоляции. Чаще всего отмостку делают в виде цельной монолитной конструкции из бетона, для эффективной подготовки раствора не обойтись без бетономешалки, емкостей под него, а также укрепляющей металлической арматуры.
Подготовка бетона
Чтобы сделать отмостку крепкой и надежной, необходимо использовать марки бетона М250 – М350, но иногда выбирают и более высокий класс. Классический состав для заливки отмостки – это 8,5 частей, из которых 3 – песок, 4 – щебень, 1 – цемент и 0,5 – вода. Цемент и вода перемешиваются в бетономешалке до получения однородной смеси – соединителя для щебня и песка. Оставшиеся компоненты смеси порционно засыпаются в бетономешалку, материалы в этом случае распределяются равномерно.
Требуется контролировать содержание влаги, чтобы смесь не получилась слишком жидкой. Вода должна хорошо пропитать цемент, но заливают ее ровно столько, сколько нужно для пропитывания. Чем крупнее щебень – тем меньше соотношение количества воды и других компонентов (оптимальные фракции щебня – от 0,5 до 2 сантиметров). Песок перед добавлением в раствор просеивается и промывается, чтобы исключить примеси.
Размер придомовой территории

Пределы и площадь участка земли возле дома указываются в кадастровом паспорте
Гражданам стоит учитывать, что придомовая территория частного дома размер может иметь разный.
Причем пределы и площадь указываются в кадастровом паспорте. В нем будут зафиксированы не только сведения о собственности здания, но и о придомовом участке после осуществления приватизации.
Однако во многих ситуациях присутствуют неясности, ведь в кадастровом паспорте указывается меньше площади участка, нежели есть на самом деле.
Часто администрация поселения или муниципалитет устанавливают нормы, в соответствие с которыми частный дом должен иметь дополнительный земельный участок с определенным размером. Даже если территория не принадлежит собственнику жилья, ему могут предоставить возможность использовать ее.
Определить размер описанной территории многоквартирного дома можно с помощью формулы, используемой специалистами. Однако для приусадебных участков это невозможно. Дабы определить размеры самостоятельно, необходимо соблюдать следующие условия:
- составить план установленных границ территории;
- на план нужно нанести присутствующие объекты;
- обозначается придомовая местность, находящаяся в муниципальной собственности;
- нужно учитывать, что одинаковые по площади приусадебные участки могут иметь указанную территорию с разным размером;
- убедиться в том, что присвоение дополнительного земельного участка не нарушает права соседей;
- обратиться в органы местного самоуправления и оформить право собственности.
Видео описание
В видео показано, как сооружается отмостки с полужестким покрытием, а точнее из тротуарной плитки:
И третий вид – с мягким покрытием. Последний – это глина, которую укладывают толстым слоем. Этот вариант формирования отмостки использовали при возведении небольших дач. Эконом-вариант сегодня используют очень редко. Но надо отдать должное глиняным отмосткам, которые неплохо справлялись со своими функциями. Их обычно сверху засыпали гравием или щебнем, который выполнял чисто декоративные функции.
Новые технологии сооружения отмостки
Сегодня с появлением на рынке огромного количества новых строительных материалов появилась возможность формировать отмостки в виде цветников. Делают это так:
- выкапывают вокруг дома траншею, уже с уклоном;
- застилают ее дно и стенки гидроизоляционной мембраной;
- поверх застилают геотекстиль, его задача – не дать возможность корням высаженных растений порвать гидроизоляцию;
- засыпают песчано-щебеночную смесь, которая будет выполнять функции дренажной системы;
- засыпают плодородный слой, на который и высаживают цветы и травы.
Этот вариант сооружения отмостки – отличное решения для декоративного наполнения загородного участка. Единственный минус скрытой отмостки, как иногда ее называют строители, это невозможность по ней ходить.

Отмостки мягкого типа с зеленными насаждениями Источник yandex.ru
Почему конструкция может прийти в негодность
«Защитный пояс» вокруг дома должен служить десятки лет, но недочёты на этапах проектирования, сооружения конструкции и некачественные материалы могут свести усилия и финансовые затраты к нулю.
- лента уже отвеса крыши, поэтому на участке вокруг дома плохо отводится вода и земля размывается;
- несоблюдение технологии при укладке слепой зоны «пирога»;
- отсутствие деформационного зазора между кожухом и основанием;
- в основании полужесткой или мягкой конструкции не проложен дополнительный гидроизоляционный пласт;
- плохо обработаны компенсационные швы при сооружении монолитной ленты;
- слишком тонкая керамическая плитка;
- дефекты в бетоне и асфальтобетоне после заливки;
Причиной разрушения манжеты подстенка могут стать грызуны, если проложен утеплитель из пенопласта. Также грибки и плесень разъедают органические ряды, не обработанные антисептиком.
Сооружение ленточной защиты для дома должно проводиться параллельно с облицовочными работами стен, поэтому нельзя откладывать возведение защиты на длительный период. За несколько месяцев паводковые воды и атмосферные осадки размоют почву, что приведёт к разрушению здания.
Распространённые ошибки
Трещины в стенах, покосившиеся углы, плесень на стенах, вода «стоящая» в подвалах вот не полный перечень проблем, которые возникают у хозяев дома, если при монтаже ленточного кожуха были допущены ошибки.
- Недостаточная «проливка» песчаной подушки не даёт возможность плотно утрамбовать песок, который служит барьером от проникновения талых вод под фундамент.
- Отсутствие водонепроницаемой глиняной прослойки в одном из слоёв подземной части кожуха.
- При заливке монолита используется слишком тонкий пласт бетонной или асфальтной массы.
- Жёсткая конструкция не имеет опалубки и не армирована.
- Отсутствие деревянных или резиновых усадочных швов, актуальных на неустойчивых грунтах.
- Размывке основания способствует прерывистое по периметру защитное покрытие.
Уложите плиты теплоизоляции
Когда основание новой отмостки готово, можно приступать к монтажу плит теплоизоляции. Для этих целей отлично подходит экструзионный пенополистирол XPS. Он прочный, не впитывает влагу, не меняет форму под нагрузкой, устойчив к агрессивным средам.
При утеплении отмостки многоквартирного дома имеет смысл воспользоваться линейкой материалов, разработанных специально для профессионального использования в сегменте ПГС, например, XPS ТЕХНОНИКОЛЬ CARBON PROF. Этот утеплитель толщиной 50 мм имеет показатель теплопроводности на уровне 0,032 Вт/(м•К). Для удобства монтажа и создания единого слоя теплоизоляции без мостиков холода плиты XPS имеют L-кромку, благодаря которой они плотно стыкуются.
Предназначение

Защита жилища от влаги (дождевая/талая вода) – не единственная причина, по которой строительные компании оснащают фундамент вспомогательной конструкцией.
Также отмостка создает:
- эстетику придомовой территории (формирует эффект завершенного строительства);
- удобство (защитная полоса зачастую используется для прогулок, а также задействуется в качестве зоны для проведения досуга).
Водозащитное покрытие может утепляться экструдированным пенополистиролом, что нивелирует риск перекоса фундамента, которому способствует процесс морозного пучения грунта. Дома (в особенности те, которые стоят на глинистых/суглинистых почвах) могут со временем разрушиться, если при их проектировании не предусмотрели отмостку.
Ремонт отмостки при капитальном ремонте фасада МКД
Что уже пробовали для решения этого вопроса: перечень работ по капитальному ремонту зданий и сооружений Восстановление существующей отмостки вокруг здания (более 20% общей площади отмостки) (Постановление Госстроя СССР от 29.12.1973 N 279), а согласно Методическим рекомендациям по формированию состава работ по капитальному ремонту многоквартирных домов, финансируемых за счет средств, предусмотренных Федеральным законом от 21 июля 2007 года N 185-ФЗ «О Фонде содействия реформированию жилищно-коммунального хозяйства» ремонт отмостки относится Ремонт подвальных помещений, относящихся к общему имуществу в многоквартирных домах (Раздел IV). Относится ли к капитальному ремонту фундамента ремонт омостки?
Согласно предписанию требуется устранить неисправное и частичное отсутствие отмостки по периметру дома, в тоже время необходимо выполнить капитальный ремонт фасада (требуется штукатурка и покраска более 50 %). Можно ли попробовать отнести работы по ремонту отмостки к капитальному ремонту фасада?
Реконструкция отмостки позволит УО сэкономить
Вопрос утепления элементов дома, соприкасающихся с грунтом, не сводится только к их долговечности, а имеет куда более серьезное значение. Даже если качественно утеплить все ограждающие конструкции дома, отсутствие утепления фундаментов, полов по грунту и подвалов приведёт к серьёзным теплопотерям — до 10%.
Проведение реконструкции отмостки с утеплением в конечном счёте положительно отразится на самих управляющих организациях:
- Можно забыть о ежегодном ремонте отмостки и сэкономить на её ремонте, направив средства на другие нужды дома.
- Снижение теплопотерь через фундамент позволит поддерживать в подвальной части дома комфортную температуру и уровень влажности, уменьшить сырости в подвале.
- При проверках орган ГЖН не выявит нарушения УО лицензионных требований в части содержания в надлежащем состоянии отмостки дома, подвала, уровня температуры и влажности в помещениях общего пользования.
Отмостка служит для отвода воды от основания дома
В многоквартирном доме отмостка обычно представляет собой полоску бетона по периметру здания. Она, в первую очередь, служит для отвода воды и мешает ей проникать под основание дома.
Если в доме нет отмостки, или она находится в непригодном состоянии, то основание здания под действием влаги начнет разрушаться
Поэтому важно защитить конструкцию от разрушения и добиться, чтобы она полноценно выполняла свою основную функцию
С одной стороны, нормативно-правовые акты, СНиП и ГОСТы регулируют нюансы устройства отмостки: ст. 25 № 384-ФЗ, СП 82.13330.2011, СНиП 3.04.01-87, СНиП III-10-75, ГОСТ 9128-97*, ГОСТ 7473-94. С другой, вопрос её теплоизоляции никак не регулируется в нормативно-правовых актах и нормах. Это означает, что застройщики в ущерб долговечности конструкции и энергоэффективности имеют полное право отказаться от утепления отмостки.
Виды деформационных швов
Деформационные (компенсационные) швы условно делятся на несколько групп:
• усадочные;
• температурные;
• осадочные;
• сейсмические.
Каждая разновидность имеет конструктивные особенности, поэтому перед выбором варианта следует адекватно оценить следующие факторы:
• климатические особенности региона;
• тип грунта;
• степень подвижности пластов земли;
• используемые материалы для создания отмостки.
Все необходимые данные изымаются из документации изыскательских работ, проводимых перед закладкой фундамента строения. Если дом возведёт много лет назад, лучше заказать геодезические исследования для определения состояния грунта и уровня залегания подземных вод. Это поможет создать надёжную защиту фундаменту, продлив тем самым срок эксплуатации всего строения.
Как и кем составляется смета?
Для установления стоимости капремонта МКД управляющая компания разрабатывает проект, в который входят два раздела: пояснительная записка и сметы, составленные в ценах, на момент проведения ремонта. Такая документация должна содержать: сводный расчет, локальные и объектные сметы.
Локальные сметы оформляются с учетом объемов, выполненных по факту, на основе дефектных ведомостей, оформленных УК и проектной компанией. В такие сметы включаются коэффициенты, учитывающие индивидуальность выполняемых ремонтных операций.
Много важной и полезной информации о ремонте отмостки вокруг дома представлено в данном разделе
Устройство заливки вокруг дома по СНиП и ГОСТ
Возведение отмостки вокруг дома регламентируется рядом нормативных документов:
- «Пособие по проектированию оснований зданий и сооружений» (СНиП 2.02.01-83). Среди общих моментов конструкции здания в документе выделяется пункт о выполнении требований по грунтам. На сегодня в правовом поле действует ещё одно указание – «Свод правил» (СП 22.13330.2011).
- По СНиП III-10-75 прописаны основные требования по благоустройству территории: примыкание отмостка к цоколю строения, уклон дорожки (не менее 1% и не более 10%), характеристики наружной кромки.
- Требования к качеству бетона регламентируются ГОСТом 9128-97 (смеси асфальтобетонные дорожные, аэродромные, асфальтобетон), и ГОСТом 7473-94 (бетонные смеси, рекомендованные для подъездной площадки для автомобиля).
- «Благоустройство территорий» (СП 82.13330.2016).
Единых нормативов обустройства «защитного пояса» возле дома не существует, поэтому следует опираться на опыт специалистов. О вариантах и нюансах изготовления покрытия можно узнать на специальных строительных форумах в «мировой паутине».
Ширина
Стандартная ширина отмостки вокруг дома
Операционный контроль по надзору за строительством предусматривает стандартные размеры ширины отливов в зависимости от особенностей грунта:
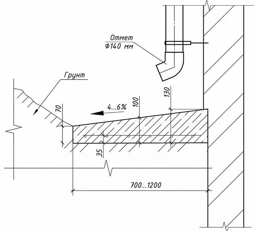
- На песчаных почвах – от 70 см.
- На глинистых породах они делятся на два типа: не проседающих от собственной тяжести, и проседающих под собственным весом, – от 100 см.
- На обычных грунтах минимальная ширина составляет 60 см.
- На просадочных грунтах (в сложных геологических условиях) I типа – 1,5 м, II типа – 2 м.
Но этот показатель напрямую зависит от карнизных свесов крыши. Стекающие осадки не должны попадать на землю и не скапливаться под домом. Поэтому на обычной почве ширина «дорожки» должна выступать на 20 см в соотношении с карнизом, на просадочных грунтах – на 20–40 см (не менее 90) за границей откосов котлованов, подготовленных под заливку фундамента.
Обустройство отмостки в нестандартных постройках производится на основании типа грунта, выноса свесов крыши, наличия или отсутствия водоотвода (ливнёвка или дренаж). Её ширина должна превышать свес минимум на 20 см.
Также отмостка дома делается с учётом такого фактора, как часто планируется движение по дорожке человека или автомобиля.
Длина
Длина защитной ленты зависит от габаритов строения. Она располагается по периметру дома, пристройки или гаража. Дорожка может прерываться только в месте обустройства входной двери или крыльца.
Толщина и высота
Чтобы определиться с глубиной траншеи по периметру фундамента необходимо рассчитать толщину конструкции с учётом предполагаемых слоёв (высота цоколя зависит от материалов прослоек и финишного покрытия).
Если прослойка состоит из щебня, гравия или керамзита, рекомендованная высота – 30–35 см, а твёрдую и плоскую поверхность (тротуарная плитка, асфальтобетон), поднимают до 45-55 см.
Уклон
Чтобы залить отмостку вокруг дома, применяется технология, сходная с обустройством дорожек, но только под уклоном.
Хотя рекомендованные в Гостах показатели поперечного уклона от центральной оси строения от 1 до 10%, практика показывает, что за среднюю величину для большинства уклонов следует принять 5%.
Компенсационный (деформационно-температурный) шов в отмостке
Схема устройства компенсационного шва
Чтобы правильно сделать отмостку дома, необходимо учитывать «жизненные циклы» почвосмеси, которая периодически «дышит», меняя воздушно – газовый режим, или вспучивается от заморозков.
Чтобы избежать деформации дорожки из–за разрушения железобетона, который находится в земле, стяжку «сшивают» специальными температурно – деформационными швами. Структура бетонного слоя становится пластичнее. Это позволяет компенсировать перепады атмосферной температуры, колебания грунта и обеспечивает прочность строения, предотвращая его осадку.
В зависимости от характеристики климатических условий, состава грунта и строительного материала швы делятся на усадочные, атмосферно – осадочные, сейсмические и температурные.
Специалисты рассчитывают расстояние между компенсационными зазорами с учётом материала корпуса (кирпич, бетон, дерево и т.п.), типа фундамента. Средняя цифра равняется 1.8 – 2.5 метра.
По технологии на заключительном этапе в частном доме щели заливают герметическими составами через 2–3 месяца.
Размеры отмосток по СНиП
Основной параметр – это ширина отмостки. В своде норм и правил указывается, что этот размерный показатель зависит от нескольких факторов, а именно от:
- типа грунта на загородном участке;
- степени просадки почвы;
- ширины выступа карнизного свеса крыши;
- архитектурных особенностей здания.
Что касается зависимости от типа грунта, то здесь необходимо обозначить два вида почвы.
- Это грунты, устойчивые к деформационным нагрузкам. Здесь имеются в виду нагрузки от собственной массы. Степень просадки таких почв не превышает 50 мм.
- Грунты, которые восприимчивы к нагрузкам. Их степень просадки больше 50 мм.
Так вот если на загородном участке расположены грунты первой категории, то ширина отмостки должна быть в пределах 150 см. Если второй категории, то 200 см.
Определить тип грунта можно, передав почву на анализ. Или другой вариант – обратиться в геодезическую службу района.

Минимальная ширина отмостки по СНиП Источник ok.ru
Но есть в СНиПе так называемый минимальный параметр ширины. Он определен диапазоном 80-100 см
При этом важно учитывать ширину свеса крыши дома. То есть первый параметр должен быть больше второго на 20-30 см
Получается так, что стекающая с крыши вода должна попадать на отмостку и по ней удаляться подальше от фундамента здания.
Но при этом в СНиПе указывается о пропорциях отмостки и здания, а также зданиях соседних. Необходимо строго следить за этими пропорциями, потому, к примеру, узкая дорожка вокруг дома может не вписаться в общий экстерьер участка в целом.

Узкая отмостка смотрится некрасиво Источник pinterest.com
Угол наклона отмостки
Переходим к не менее важному параметру – уклону отмостки. Именно от него зависит, как дождевая и такая вода будут отводиться от здания
В СНиПе четко обозначено, что минимальный угол наклона должен варьироваться в пределах от 2° до 3°. В своде также обозначен и другой показатель, связанный с уклоном. Это толщина сооружения около фундамента. Она должна быть равна 10-15 см. А толщина внешнего края – 5-10 см.

Оптимальный угол наклона отмостки Источник cokr54.ru
Но с толщиной отмостки не все так просто, поэтому разберем и этот размер.
Требования к толщине
В основу этого габаритного размера вкладывается марка бетона, используемого для заливки основы под облицовку. Чем она больше, тем меньше толщина. Но необходимо понимать, что бетонный слой – не единственный в конструкции отмостки. Здесь надо будет учитывать дополнительно песчано-гравийную подушку. А она обычно засыпается толщиною 5-15 см в зависимости от типа почвы на загородном участке. Чем мягче грунт, тем толще подушка.

Толщина окантовки зависит от толщины укладываемых слоев Источник pobudova.in.ua
Технология обустройства
Для самостоятельного обустройства данной конструкционной части здания можно использовать различные технологии, однако, наиболее простая из них заключается в строительстве горизонтальной отмостки. Прежде, чем приступать к строительным работам, необходимо подготовить площадку для отмостки и устранить все факторы, которые впоследствии могут привести к деформации ленточной поверхности. Это означает, что нужно не только провести земельные работы, но и закончить обустройство кровли, установить козырьки и карнизные весы. Технология строительства отмостки предполагает осуществление ряда таких операций:

Укладка бетона по секциям
- установка колышек, которые будут выполнять роль ориентиров, по наружному краю будущей отмостки;
- выкапывание котлована;
- обустройство основания;
- уплотнение дня котлована;
- распределение по обустроенному котловану щебня.
После реализации описанного выше плана работ можно приступать к установке основного покрытия. В данном случае необходимо выбирать технологию, которая подходит для строительного материала, с которым предполагается работа. Чаще всего котлованы просто заливают бетоном. Нередки случаи, кода в качестве основного покрытия укладывается тротуарная плитка на слой подбетонки, толщина которого 3 сантиметра.

Простая схема отмостки
Для того, чтобы продлить срок службы отмостки, нужно подобрать бетон с подходящей морозостойкостью. Оптимальным будет выбор в пользу марки 200 и выше. Если вы используете разделение бетонов на классы, то выбирайте от В15 и выше.



































