Полки из гипсокартона своими руками (видео)
Таким образом, моделируя из гипсокартона полки или другие подобные конструкции, необходимо владение хотя бы базовыми навыками дизайна, а также обработки материалов и слесарных работ
Напольные или настенные конструкции могут быть любой формы и конфигурации, важно, чтобы они органично вписывались в дизайн помещения и не занимали много места. Гипсокартон широко применяется для изготовления полок или ниш в силу доступности, невысокой стоимости, лёгкости обработки
В интерьере любой жилой комнаты полочки из гипсокартона смотрятся, как правило, красиво и гармонично. Если они выполнены своими руками, то они приносят ещё и эстетическое удовлетворение.
Отделка готовой конструкции
Финишная отделка полочек из гипсокартона зависит от общего дизайна ванной комнаты, и производится следующим образом:
на готовую конструкцию нанести грунт в два слоя, и дать ему хорошо высохнуть;
при помощи шпаклевки и серпянки заделать все стыки и примыкания к стенам, чтобы впоследствии не появились трещины;
на внешние углы установить перфорированные угловые элементы и зафиксировать их смесью штукатурки
Важно! Для криволинейных конструкций покупается арочный уголок, изготовленный из пластика, он отлично гнется благодаря сечениям, нанесенным на одну сторону; Подготовка полки для декора
нанести слой шпаклевки на всю поверхность гипсокартонной конструкции, дать просохнуть;
прошпаклевать полочки повторно, через 24 часа;
как только высохнет второй слой шпаклевки, конструкцию нужно хорошо отшлифовать абразивной сеткой;
нанести на готовые полочки грунт.. Подготовка к финишному покрытию закончена
Задекорировать полки из гипсокартона можно различными способами, например:
Подготовка к финишному покрытию закончена. Задекорировать полки из гипсокартона можно различными способами, например:
- Применить декоративную штукатурку с водоотталкивающим эффектом.
- Окрасить в любой оттенок.
- Уложить на полочки декоративную мозаику на плиточный клей. Применять этот способ облицовки, можно без предварительной шпаклевки.
Изготовление полок своими руками: пошаговая инструкция
Составление эскиза
В процессе проектирования определяются размеры и форма будущего изделия. Готовый эскиз прикладывается к стеновой поверхности, по нему делается разметка, отмечаются предположительные места крепления изделия. Разобравшись с проектом, нужно составить список материалов и инструментов, необходимых для монтажа.
Размеры плит бывают разными: длина варьируется от 2 до 4,5 м, ширина 1,2 – 1,3 м, толщина 6 – 24 мм. Учитывая параметры отделочного материала, можно правильно выбрать нужный вариант и рассчитать возможную нагрузку на него.
Подготовительные мероприятия
Прежде всего с рабочей поверхности удаляются все выступающие элементы, которые будут препятствовать ровному монтажу оцинкованных профилей.
Если есть трещины, глубокие щели, их нужно обязательно заделать. После чего всю поверхность покрыть грунтовкой глубокого проникновения для предотвращения осыпания первого слоя штукатурки.
Часто домашние мастера сталкиваются с вопросом «Как сделать угловые полки из гипсокартона своими руками?». Принцип изготовления угловых и прямых конструкций практически одинаков, только в первом случае профиль надрезается в нескольких местах для придания нужной формы.
Сборка металлического каркаса
Настенные конструкции, в том числе и полки из гипсокартона у окна, рекомендуется устанавливать на усиленную обрешетку, чтобы повысить уровень их прочности и функциональности. Для работ понадобятся шуроповерт и саморезы, которые нужно фиксировать на расстоянии от 250 мм друг от друга.
Для выдерживания серьезной нагрузки используют толстые листы с толщиной свыше 18 мм и крепежные элементы в виде винтов-бабочек.
Металлические профили монтируются к стене с частым шагом, для усиления каркаса применяются траверсы и рамы.
Чтобы сделать каркас максимально прочным, рекомендуется направляющие закрепить к потолочному перекрытию либо полу и между направляющими и профилем поставить перемычки.
Обшивка полок гипсокартоном
Закончив монтирование металлического каркаса, можно приступать к его обшивке:
- Если ниша была встроена в стену, то в первую очередь крепятся цельные плиты, а потом уже вырезанные части
- Если установка ниш производилась отдельно, то сначала нарезаются фрагменты нужного размера
- Первым делом следует обшивать внешние стороны полок, а затем крепятся внутренние части ниши
Если предусмотрена подсветка из точечных светильников, то в кусочках нужно заранее вырезать отверстия по размеру осветительных приборов. Встроить освещение можно будет после финишной отделки.
Полки из гипсокартона на кухне своими руками лучше покрывать влагостойкой штукатуркой или краской, чтобы продлить срок службы изделия.
Окончательная отделка
Углы полок нужно закрыть металлическим уголком, места соединения проклеить армирующей лентой – серпянкой. Поверх нее нанести тонкий слой шпаклевочной смеси. Зашлифуйте все неровные места.
Прогрунтованную поверхность следует покрыть финишной шпаклевочной смесью.
Согласно пошаговой инструкции полки из гипсокартона своими руками монтируются достаточно быстро и просто. Если используется стекло, то каркас нужно делать усиленным, чтобы в дальнейшем избежать неприятностей.
Полки из гипсокартона: идеи, советы, интересные решения
Самые простые варианты полок вы всегда можете создать самостоятельно. Это удобно, так как вы не ограничены ничем, кроме материала и своей фантазии. При этом для всевозможных ниш и стеллажей вы можете использовать даже такой материал, как гипсокартон, тот самый, которым вы облицовывали стены. Возникает вопрос — как сделать полки из гипсокартона, если это облицовочный материал из гипса и мела: на первый взгляд такое сочетание определяет хрупкость и небольшие весовые нагрузки и на навесные полочки, и на ниши, и на стеллажи. Но это только кажущаяся проблема – гипсокартоновая поверхность с успехом выдержит и телевизор, и книги, и декоративные украшения.
Секрет в правильном выборе материала: толщина листов 6-24 мм позволяет решить несколько проблем – реализовать и любой дизайн; и создать надежные стеллажи в прихожую, ванную, спальню или на кухню с различными нагрузочными характеристиками; просто выполнять декоративную роль в интерьере любого помещения. Как вариант – стены из гипсокартона, выполняющие роль стеллажа и полок, которые изображены на фото:

Полочки из гипсокартона, имеющие подсветку – находка для коллекционеров: это могут быть ниши, где подсвечивается каждый предмет отдельно, и целые стеллажи вдоль стен. Вариантов освещения много – это и привычные точечные светильники, и популярные светодиодные источники света, и небольшие неоновые лампочки. Но следует помнить, что планировать подсветку полок следует заранее: проводка монтируется на этапе оборудования каркаса из профиля. Вид, яркость и цвет освещения выбирается в зависимости от задач подсветки:

Декоративные полки для кухни – это место для размещения украшений, предметов неиспользуемой утвари (например, в стиле кантри) или редко используемых вещей. В санузле полки на стену могут быть и функциональными: освежители воздуха, предметы личной гигиены или просто красивые безделушки не занимают дополнительного места, но добавляют комфорта. В гостиной или спальне они могут создавать даже имитацию мебели:

Что получится – отдельные подставки или целый стеллаж – зависит от особенностей комнаты и вкуса владельца помещения: как можно решить проблему «неудобных» углов или ниш можно видеть на фото:

Ниши помогают решить проблему с инженерными сетями, которые портят вешний вид помещений: они одновременно закрываю трубы или проводку, и придают таким защитным коробам вид законченности и естественности.
Что и как делать, как размещать и оформлять ниши – видно на фото:

Совсем необязательно пытаться делать полки под ТВ – их прекрасно заменяют специальные настенные системы. Но ниши помогают максимально выгодно использовать пространство помещений: здесь можно предусмотреть место для домашнего кинотеатра, музыкально центра, проигрывателя DVD или домашней фильмотеки:

Стеллажи, украшающие углы, могут быть и декоративными, и функциональными – это и полки для книг, и для сувениров или подарков, и для цветов. Как можно использовать гипсокартон для создания угловых полок демонстрирует видео
https://youtube.com/watch?v=Xo1qxOY7doY%3F
Дизайн и расположение
Гипсокартон – очень податливый материал, поэтому вовсе необязательно делать стандартные угловые полки – вы можете экспериментировать с размерами и формой.
Разрабатывая дизайн конструкции, исходить стоит, прежде всего, из того, насколько органично он будет выглядеть в интерьере комнаты.
Полки и ниши в гостиной
Например, полки из гипсокартона для гостиной можно оборудовать точечными светильниками, обычно их монтируют сбоку. Это создаст уютное освещение и дополнительный источник света, который не займет лишнего места.
Прекрасной идеей будет сделать полку на стену встроенной и расположить ее в нише гостиной – так она займет пустое нефункциональное, на первый взгляд, место, не урезая при этом размер помещения.
Не менее популярным, чем полки, являются ниши из гипсокартона. Сделать их не сложнее, чем полки, но использовать можно более функционально.
Например, можно сделать нишу в гостиной, куда можно поместить телевизор, или же заняться созданием ниши в ванной, которая может стать обрамлением зеркала.
Фото:
Полки и ниши в кухне
Повесить полку на стену можно не только в ванной или гостиной, но и на кухне или в коридоре.
На кухне тоже хорошо будут смотреться конструкция из гипсокартона с подсветкой – можно установить такую в обеденной зоне, и она придаст уюта помещению.
Конечно, для хранения домашней утвари открытые полки не очень подойдут, но разместить на них декоративные элементы или вазы с цветами — вполне можно.
Арка с подсветкой может стать интересным дизайнерским решением, а также границей между кухней и светильником.
В этом случае перегородка оборудуется точечными светильниками изнутри – это немного сложнее, чем разместить их на полках, но вполне по силам любому непрофессионалу.
Такая арка может располагаться и в коридоре, и служить проходом к гостиной в том случае, если вы захотите убрать дверь.
Посмотрите другие варианты, как сделать светильники в нише арки и полках на фото.
Фото:
Размещение в других помещениях
Ниши из гипсокартона – прекрасная возможность сделать помещение визуально больше. Можно сделать ниши большими – так, чтобы они служили перегородкой в гостиной или кухне.
Таким образом, вы разделите рабочую зону и зону отдыха.
Ниши также можно оборудовать подсветкой – тогда с одной стороны она будет сплошная, просто как перегородка, а с другой – иметь функциональные полки для размещения декоративных элементов.
Делать такие ниши лучше всего белого цвета, т.к. он делает помещение визуально больше, и размещать в больших комнатах – например, гостиной.
Для ванной лучше всего подойдут встроенные полки, т.к. в этом помещении не так много места.
Встроенные полки подойдут не только для ванной – их можно повесить на стену в любом помещении, где есть свободный угол.
В коридоре можно сделать полки для обуви (если вас не смущает, что она будет открытой), в детской оборудовать полку для книг и игрушек, в спальне или гостиной – для фоторамок и других декоративных элементов.
Благодаря пластичности материала, использовать его можно буквально в любом пространстве, какой бы вариант его расположения вы ни выбрали – полки, арку, нишу или перегородку.
Варианты дизайна полок и других конструкций из этого материала в ванной и других помещениях квартиры смотрите на фото.
Сделать полки из гипсокартона своими руками совсем не сложно, так же дело обстоит и с другими объектами, поэтому если вы раньше не работали с этим материалом — не волнуйтесь, монтаж элементов из гипсокартона намного проще, чем из дерева или, того хуже, металла, а выглядит он при этом очень и очень впечатляюще.
Фото:
Особенности гипсокартона
Почему стоит сделать полки своими руками именно из гипсокартона? Все дело в том, что у этого материала множество достоинств, потому как это один из тех редких материалов, который по своим гигиеническим качествам абсолютно безопасен и идеально подходит для отделки внутренних помещений своими руками.
Гипсокартон отличается своей толщиной, поэтому перед покупкой узнайте у продавца, подойдет ли выбранный лист для ваших целей
Неоспоримое преимущество гипсокартона – возможность воплощения практически любых идей
Преимущества
Плюсы гипсокартона:
- не содержит токсических вредных для здоровья веществ, гипоаллергенен;
- отличается звукоизолирующими качествами;
- огнестоек;
- негорючий и пожаробезопасный;
- способен дышать – поглощать влагу либо отдавать ее, что позволяет создавать в помещении комфортные климатические условия;
- прост в обработке – легко режется;
- прост в монтаже.
Недостатки
Минусы гипсокартона:
- материал не выдерживает длительного воздействия влажности и деформируется;
- требует аккуратности в монтаже, особенно, когда дело доходит до сложных геометрических конструкциях – неаккуратное исполнение может привести к деформации конструкции;
- материал не любит ударов и падений тяжелых предметов и может повредиться.
Конструкции из гипсокартона после сборки требуют декоративного оформления. Нельзя оставлять гипсокартон в том виде, в каком он существует. Полки и прочие изделия из него необходимо покрасить. Швы между листами гипсокартона маскируют тщательно. Для этого швы проклеивают лентой и покрывают шпаклевкой, добиваясь иллюзии единого целого. Если шпаклевочные работы будут сделаны неаккуратно, то швы будет видно и изделие потеряет свой эстетичный внешний вид.
Разновидности
Полки из гипсокартона можно сделать во всю стену кухни. В данном случае появится много полезного пространства, что значительно компенсирует толщину стены из гипсокартона
Гипсокартон можно использовать совместно с деревянными полками. В таком случае у вас появляется возможность переставлять полки без переделки
Гипсокартон может быть:
- водостойким;
- огнестойким.
Водостойкий гипсокартон содержит вещества, которые не допускают роста на нем плесени и грибков. Из такого гипсокартона можно сделать своими руками полки в ванную комнату и на лоджию. Опять-таки, надо учесть, что и влагостойкий гипсокартон при длительном попадании на него воды промокнет и деформируется. Поэтому полки должны находиться вне досягаемости воды. И они должны быть покрыты влагостойкой краской или керамической плиткой. Последнее – надежно защищает гипсокартон от промокания.
Существует особо прочный гипсокартон – пазогребневой. Он обладает даже сейсмической устойчивостью, поэтому из него можно сделать полки особой прочности под тяжелую технику. Однако стоит такой гипсокартон дорого и не везде продается.
Монтаж каркаса из стального профиля
Каркас должен выдерживать не только вес отделочного материала, но и вес предметов, которые будут на нем стоять. Это нужно учесть при проведении его крепления на стене.
Статья по теме: Инструкция как навесить дверь на петли своими руками
Осуществляется монтаж каркаса для полки в зале в следующем порядке:
Схема сборки каркаса путем монтажа оцинкованного профиля под гипсокартон.
- На стену (пол, потолок) наносятся линии размещения несущих профилей.
- Отмеряются и отпиливаются несущие элементы нужной длины. В них каждые 25-35 см просверливаются отверстия для крепления.
- Несущий профиль прикладывается к несущей и опорной поверхностям, намечаются места для дюбелей.
- Просверливаются дырки, в которые вставляются дюбели.
- Несущий профиль прикрепляется к стене (полу, потолку).
- Из CD-профиля, боковых и Т-образных соединителей собирается конструкция каркаса. Крепление деталей между собой осуществляется с помощью специальных саморезов по металлу.
По окончании монтажа прочность каркаса проверяется путем надавливания на него с разных сторон. Если конструкция отвечает требованиям прочности, то внутри нее устанавливается электропроводка в специальном защитном коробе.
Как сделать полки на стене из гипсокартона криволинейной конфигурации
Создание криволинейных систем хранения из гипсокартона является сложным и трудоемким процессом. Перед тем как сделать полку в ванную необычной конфигурации, предварительно следует подготовить шаблон из прочного материала. Для этого подойдет фанера, из которой вырезается криволинейная деталь. На нее будет впоследствии раскладываться гипсокартонный лист.
Для получения изогнутого элемента заготовка из гипсокартона обрабатывается игольчатым валиком, который проделывает в полости мелкие отверстия, и смачивается водой при помощи губки таким образом, чтобы жидкость вышла из каждого отверстия. Деталь должна пропитаться на протяжении 10 минут, однако гипсокартон не должен промокнуть полностью. Мокрый элемент накладывается на изогнутый шаблон и оставляется до высыхания.
Для создания каркаса используется специальный гибкий профиль. Обрешетка выполняется по принципу, изложенному выше. Однако вместо обычных профилей используются арочные элементы.

Изогнутые угловые полки в ванной комнате
Крепление криволинейной полки из гипсокартона в ванной своими руками происходит от самой высокой точки, постепенно двигаясь к краям. При этом саморезы должны располагаться с шагом не более 15 см.
Финишная отделка готовой конструкции происходит традиционным образом. Однако на внешние углы устанавливаются арочные уголки из пластика, которые поддаются деформации благодаря сечениям с одной стороны. Обычные перфорированные уголки для криволинейных конструкций не подойдут.
Применение полок из гипсокартона
Использование гипсокартона в интерьере позволяет создавать красивые полки и эксклюзивные встраиваемые ниши в зале, на кухне, в кладовой и даже в ванной.
- Для зонирования помещения можно установить функциональные перегородки со сквозными полками.
- Очень оригинально смотрятся полки из гипсокартона в спальне, выполненные в виде отдельного элемента или составной части основной конструкции. По своей функциональности такие полки не уступают стандартным деревянным шкафам и комодам.

- Для хранения кухонной и другой домашней утвари широко используются открытые полки и встраиваемые ниши, позволяющие существенно сэкономить пространство в кухне и кладовой.
- Полки и стеллажи часто используют для установки в зал бытовой техники, хранения книг, любимых сувениров и других мелкогабаритных предметов.

Встроенные полки на стене в ванной не только гармонично впишутся в интерьер, но и скроют трубы и коммуникации. Ввиду высокой влажности помещения для этих целей используют гипсокартон с высокими показателями влагостойкости.

Для украшения таких конструкций используют как точечные светильники, так и подсветку по всему периметру. Усилить игру света можно с помощью зеркал и стеклянных элементов. Такой дополнительный источник света позволит создать романтичную атмосферу и привнести в свой интерьер загадочность и изящество.
Инструменты и материалы
Перед началом работы составляется чертеж полочки. Чертеж можно исполнить на листе или использовать для этого персональный компьютер.
Когда проект закончен, проводятся расчет материалов и подготовка инструментов.
Для изготовления полочки настенного или напольного варианта крепления понадобятся такие инструменты:
Инструменты для изготовления полок из гипсокартона.
- перфоратор;
- шуруповерт;
- болгарка;
- молоток;
- лентошлифовальная машина;
- строительный уровень:
- нож;
- ножницы по металлу;
- рулетка;
- карандаш;
- шпатели 8 см и 20 см;
- наждачная бумага;
- малярная кисть.
Инструмент должен быть проверен и укомплектован.
Перечень материала, который потребуется для проведения работ, относительно невелик.
В него входят:
- оцинкованные стальные CD и UD профили;
- арочный профиль;
- ГКЛ толщиной от 8 мм до 12 мм;
- армирующая сетка;
- саморезы по металлу;
- дюбели или анкерные болты;
- алюминиевые или пластмассовые уголки;
- стартовая и финишная шпаклевка;
- жидкая грунтовка;
- отделочный материал.
Если полочка будет с подсветкой, то проводится расчет и закупка электропроводки, светильников и выключателей.
Статья по теме: Как сделать сарай на даче: и организовать та хранение вещей (22 фото)
Удобство построения ниш из гипсокартона в гостиных
Жилая площадь в многоквартирных домах, построенных во второй половине ХХ века и во многих современных муниципальных многоэтажках настолько мала, что жильцы переживают из-за каждого лишнего сантиметра, отданного при облицовке стен в зале под каркасные крепления. В какой-то мере компенсировать данную потерю можно, сделав ниши из гипсокартона в гостиной. Таким образом, можно добиться сразу нескольких положительных результатов:
- Уменьшить количество потерянной площади, так как полки могут делаться в промежутках между элементами конструкции.
- Придать индивидуальность помещению, сделать его дизайн особенным.
- Сэкономить большую сумму денег на заказе мебели по персональному проекту.
Углубления в стенах, или ниши, начали использоваться людьми с библейских времен. Несмотря на прошедшее время, они до сих пор не потеряли своей актуальности. Благодаря пластичности гипсокартона им можно придать любую форму и сделать конструкции разного размера. В гостиной ниша может быть использована:
- в качестве подставки для крупногабаритного телевизора;
- в качестве обрамления для дивана, при этом в нее можно вмонтировать подсветку или диодную ленту, что даст возможность использовать в комнате дополнительное освещение.
Встроенные полки
Сложность сборки этой конструкции немного выше, чем предыдущей, поэтому рассмотрим подробнее алгоритм действий:
Начиная от угла на потолочной поверхности провести линию, которая будет определять внутреннюю часть полок.
С помощью отвеса отметить, и провести прямую линию на полу.
Соединить отметки на полу и потолке линией на стене. Разметка стены для будующей конструкции
Закрепить направляющие по линиям на потолке и полу. Крепление направляющих
Установить стеновой профиль, соединив его с направляющими маленькими саморезами. Пример конструкции встроенных полок
Полученный каркас нужно обшить ГКЛ, предварительно его раскроив по нужным размерам строительным ножом. Монтаж производится с помощью шуруповерта и черных саморезов. Обшивка каркаса гипсокартоном
Монтируем пазы для будущих полочек, для этого нарезаем направляющие элементы нужного размера и крепим к готовой конструкции. Проверить горизонт можно простым или лазерным уровнем. Стоит отметить, что пазовые элементы должны находиться строго друг напротив друга. Монтаж пазов для будущих полочек
Подготовить несущие элементы, равные размеру полок по 2 штуки на каждую. Первая деталь крепится к стене, предварительно не забываем вставить ее в паз, вторая с противоположной стороны – это будет край конструкции.
Установить перемычки для усиления полок
Подготовка несущих элементов и установка перемычек Важно! Усиление конструкции проводится только в том случае, если глубина будущих полок будет больше, чем полметра.
Готовый каркас обшивается гипсокартоном. Обшивка каркаса гипсокартоном
Видео подборка готовых полок из гипсокартона в ванной.
Гиспокартон для разных помещений: виды и преимущества
Гипс – минерал хрупкий, легко поддается воздействию влаги, потому лист, обклеенный картоном, подойдет не для любого помещения. Учитывая это, производители выпускают разные виды этого материала.

Основные виды гипсокартонных листов, применяемых в жилых помещениях:
- ГКЛ (обычный гипсокартонный лист) используют для изготовления предметов, предназначенных для сухих помещений (гостиные, спальные, кухни, прихожие).
- Для влажных ванных и туалетных комнат используют ГКВЛ (гипсокартон влагостойкий), который пропитан противогрибковыми и влагостойкими составами.
К основным преимуществам использования гиспокартона в сравнении с другими материалами можно отнести:
- Возможность придать изделию любую форму и окрасить его в любой цвет.
- Простота монтажа конструкции (каркас + обшивка).
- Внешний вид таких полок однозначно выигрывает у деревянных.
- Себестоимость. Расходные материалы стоят недорого, потому собранная своими руками конструкция выйдет значительно дешевле готовой, приобретенной в магазине.
- Абсолютная экологичность. Этот материал не пропитывают никакими вредными веществами.
Гипсокартон в отделке ванной комнаты
Преимущества материала можно описывать долго. Перечислим основные:
- Полки из гипсокартона очень хорошо смотрятся в любом помещении. Ванная комната может похвастаться изобилием мест, где можно применить листы материала для изготовления ниш и встроенных шкафов, которые повысят функциональность помещения и украсят его.
- Гипсокартон — простой в обработке материал. Вовсе не обязательно иметь какие-то особые навыки, достаточно выполнять работу аккуратно и проявить немного сообразительности.
- Для ванной изготавливаются полки из гипсокартона водонепроницаемого типа, листы которого для удобства распознавания окрашивают в зеленый цвет.
- Материалом каркаса служит металлический профиль, который при малом весе имеет достаточную прочность. Если не предполагается нагружать полки большим весом, то применяется профиль стандартного обозначения. При желании создать полку из гипсокартона своими руками под телевизор, стоит воспользоваться усиленным профилем.
Советы по выбору конструкции полок в ванной из гипсокартона
Для установки телевизора, магнитофона или транзистора в ванной на полках из гипсокартона рекомендуется выбрать встроенный вариант. Все эти электроприборы не рекомендуется постоянно хранить в повмещении с повышенной влажностью, но можно приносить на время принятия ванны, чтобы совместить приятное с полезным.
Для хранения хозяйственных моющих средств, мыла, порошка и шампуней можно с успехом использовать угловую конструкцию полок, которая органично впишется в интерьер. Для усиления зрительного эффекта окрашивают в различные цвета боковые и внутренние поверхности.
Вариант с подсветкой используется довольно часто, лучи от светильников направляются в разных направлениях, что создает неповторимый колорит конструкции полки из гипсокартона. Фото таких композиций можно посмотреть в различных каталогах и в альбомах от дизайнеров.
Для декорирования полок из гипсокартона часть используются различные материалы, что еще больше расширяет варианты дизайна интерьера. В ванной могут устраиваться как маленькие полочки, так и сложные конструкции для многофункционального использования.
Полки из гипсокартона и ниши могут заменить отдельные предметы мебели в ванной. Можно совместить расположение открытых полок, выполненных своими руками, с установленным по центру большим зеркалом над умывальником. Для тех, кто делает прическу в ванной, рекомендуется совместить такую полку с зеркалом и оригинальную подсветку.
Велико разнообразие форм, фактур отделки, комбинаций, цветов. Все это делает гипсокартон прекрасным материалом для изготовления ниш, полок и других встроенных конструкций. В интернете можно увидеть фото, на которых показаны варианты гипсокартонных деталей с описанием работы.
Выбор материала
Самые простые конструкции встроенных полок каждый хозяин сможет выполнить своими руками. Материал действительно удобен в работе и не ограничивает фантазию мастера. Можно воплотить самые неожиданные фантазии.
Для ванной комнаты рекомендуется использовать только листы зеленого цвета, которые с успехом выдерживают влажную атмосферу. Листы розового цвета со временем могут выгнуться от влаги и испортить результаты труда.
Для плоских горизонтальных поверхностей используют листы толщиной 13 мм, которые называют стеновыми. Для боковых стенок, на которых нет нагрузки от предметов можно установить листы потоньше, толщиной 9 мм, предназначенных для отделки потолка.
Разнообразную толщину материала целесообразно применять, если после окончания ремонта в доме остались куски гипсокартона, которые пригодятся для изготовления полок в ванной своими руками.
Если вы покупаете готовый материал, то нужно смотреть на целостность листов, часто у них бывают сколоты углы и отслаивается верхний слой. Покупки таких материалов нужно избегать.
Как сделать полку из гипсокартона своими руками
Определившись с типом изделия, можно приступать к изготовлению. Рассмотрим этот процесс подробнее.
Чертежи и схемы сборки
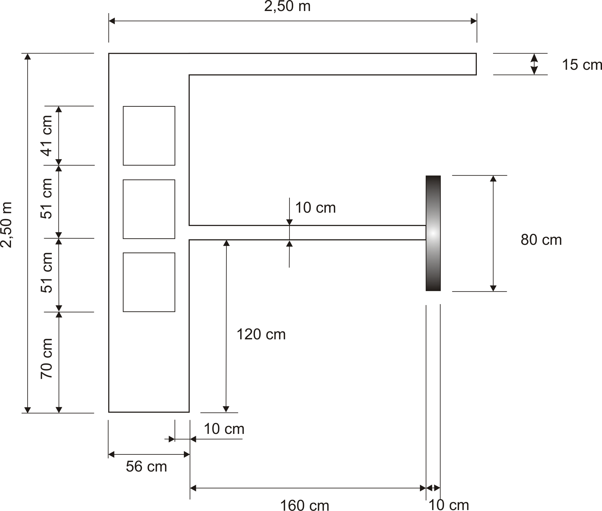
Первым этапом изготовления изделия является создание чертежа. В нем нужно отразить внешний вид, точные размеры, инструменты и пошаговое выполнение работ. При помощи эскиза намного проще осуществлять монтаж.
Размер и количество полок можно определить самостоятельно, учитывая габариты уже имеющейся техники.
Составить чертеж можно самостоятельно на миллиметровой бумаге или просто на листе А4. Также можно воспользоваться специальной программой на компьютере, которая поможет создать правильный и четкий рисунок. Можно прибегнуть к помощи Интернета.
Можно вмонтировать дополнительно настенные или точечные светильники, светодиодные лампы и ленты.
Подготовка стены
Для того, чтобы изделие было прочным и качественным, нужно подготовить стену, к которой будет крепиться сооружение.
Перед началом проведения монтажных работ по изготовлению гипсокартонных полок, потребуется подготовить стены.
Для начала нужно удалить старое покрытие. Это могут быть обои, слой шпаклевки и так далее. Если в стене есть какие-либо дефекты, то их нужно устранить. Для этого все трещины и шероховатости заполняются пеной или шпаклевкой. Покройте стену специальным раствором для большей прочности.
После того, как раствор высохнет, стену необходимо покрыть грунтовкой.
Стены лучше обработать несколькими слоями грунтовки, чтобы они в дальнейшем не осыпались.
Теперь можно приступить непосредственно к изготовлению полки.
Важно продумать внешний вид полок, функциональность, рассчитать размер и весовую нагрузку
Процесс монтажа полок из профиля
Первоначально нужно определиться с формой, размещением и тем, будет ли встроена подсветка, так как это оказывает непосредственное влияние на общую конструкцию.
Каркасом всей конструкции выступает профиль из дерева или металла. Если полка будет использоваться как хранилище для вещей, то ее нужно максимально укрепить. Если же у нее только декоративное предназначение, то укрепление не нужно.
Монтаж начинают с возведения каркаса из металлического профиля, который крепят к стене на дюбель-гвозди.
Для изготовления понадобятся следующие материалы и инструменты:
- Строительный нож;
- Ножницы для металла (если его использование предусмотрено);
- Карандаш или маркер;
- Уголок;
- Отвес;
- Саморезы;
- Дюбеля;
- Гипсокартон;
- Шуруповерт;
- Дрель;
- Лента для армирования;
- Шпатель;
- Шпаклевка;
- Грунтовка.
Для обработки понадобятся краска, обои, клей и защитное покрытие.
Теперь рассмотрим этапы проведения работ. Для начала нужно смонтировать каркас. В качестве материала можно взять древесину или сваренный в единое металл. Полки крепятся при помощи дюбелей из металла для большей надежности.
Все части каркаса закрепляются между собой на саморезы. Необходимо тщательно затягивать крепления, чтобы основа получилась прочной.
Дальше нужно саморезами прикрепить листы гипсокартона. Теперь нужно приступить к шпаклевке. Готово.
При необходимости можно установить подсветку: для этого нужно привлекать светодиоды при помощи шурупов. Также можно провести декорирование поверхности краской или узорами. Узоры можно изготовить также из гипсокартона.
Используя специальные саморезы, нужно присоединить к основанию верхние и нижние листы. Для таких целей лучше брать саморезы диаметром в 2,5 сантиметра.
Полки из гипсокартона отлично вписываются практически в любой интерьер, придают ему изюминки. Для самостоятельного изготовления необходимо следовать инструкции и четко соблюдать чертеж.
Дизайн полок бывает различным, здесь каждый человек сможет проявить свою фантазию.



































