Как выбрать?
Чтобы самостоятельно подобрать фурнитуру для откосов пластикового окна, следует обратить внимание на такие нюансы:
- угол сгиба каждой стороны откоса;
- размер стороны;
- бюджет на уголки;
- цвет изделия;
- материал изготовления;
- тип отделки.
Зная угол сгиба каждой стороны откоса окна, можно определиться с конструкцией фурнитуры. Например, если угол слишком большой, то подойдут внешние уголки для окон. Размер стороны также важен, это определяет все габариты фурнитуры. Необходимо заранее учитывать стоимость уголков, ведь разные по материалу изготовления элементы, будут иметь различную стоимость.

Цвет изделия подбирается согласно задумке интерьера, но чаще всего предпочитают устанавливать традиционные белые модели фурнитуры. Иногда владелец квартиры выбирает дерево, если сам стеклопакет также изготовлен с обрамлением в деревянную раму.
Металлические углы больше подойдут для окон из алюминиевого профиля – они как раз будут гармонировать друг с другом.
Плюсы и минусы
Использование гипсокартона для монтажа внутренних оконных откосов имеет положительные и отрицательные стороны.
К плюсам относят:
- простота работы;
- долгий срок службы;
- невысокая стоимость;
- экологическая чистота выбранного материала;
- не требует серьезного ухода;
- приятный внешний вид.
Отрицательным моментом является возможное набухание при сильной влаге, в результате потребуется отремонтировать данное место полностью. Кроме того, кромка тоже подвержена сильному впитыванию воды, из-за чего потом страдает внешний вид.
Монтаж оконных проемов листами из гипсокартона вполне возможно провести самостоятельно в домашних условиях
Важно правильно выбрать материалы и подготовить все инструменты. Во время работы не стоит торопиться, важно делать все пошагово и аккуратно. В интернете можно найти различные фото и видео того, как зашить откосы в квартире, мастера подробно объясняют весь процесс
В интернете можно найти различные фото и видео того, как зашить откосы в квартире, мастера подробно объясняют весь процесс.
Отличительные черты пластиковых подоконников
Металлопластиковые окна давно завоевали авторитет. Они пользуются у потребителей большой популярностью благодаря тому, что характеризуются высокими эксплуатационными характеристиками, легко монтируются и обладают длительным периодом эксплуатации. После замены окна сразу выполняется установка откосов и подоконника.
Благодаря наличию ребер жесткости поверхность подоконника очень прочная
Металлопластиковое окно является универсальным изделием, к которому подойдут разные варианты подоконника, что подбирается в соответствии со стилистической задачей. Самым распространенным вариантом являются пластиковые изделия. Такая конструкция наилучшим образом сочетается с материалом современного окна, создавая с ним единую композицию.
Пластиковый подоконник характеризуется отличительными преимуществами. Изделие устойчиво к воздействию влаги, солнечных лучей и температурных перепадов, не склонно к образованию гнили, плесени или коррозии. Поверхность при этом не деформируется, не меняет первозданную форму и внешний вид. Материал полностью безопасен для здоровья человека, отличается прочностью (благодаря наличию ребер жесткости), надежностью, устойчивостью к химическим воздействиям. Он обладает высокими теплоизоляционными свойствами, что обусловлено присутствием воздушных камер в конструкции подоконника.
Изделию присущ небольшой вес, что обеспечивает легкий монтаж ПВХ-подоконника, при этом он не имеет усадки при дальнейшей эксплуатации. Поверхность не нуждается в окрашивании и других вариантах обработки, предупреждающих возможное гниение или коррозию. За ней легко ухаживать. Пластиковый подоконник характеризуется невысокой стоимостью в сравнении с другими материалами.
Несмотря на достоинства, пластиковый подоконник имеет свои недостатки. При неаккуратной эксплуатации на поверхности изделия могут появиться вмятины или пробоины, что является следствием хрупкости изделия. При наличии глянцевого покрытия на нем могут образоваться царапины, что станет причиной неприглядного внешнего вида.
Пластиковые подоконники устойчивы к воздействию влаги, температурных перепадов, солнечных лучей
Изделия из сэндвич-панелей
Установка пластиковых откосов своими руками может выполняться с использованием многослойного материала, покрытого с двух сторон декоративным пластиком. Устанавливая откосы из пластика своими руками при помощи сэндвич-панелей, можно не производить дополнительную теплоизоляцию.
Сэндвич-панели обладают высокими теплоизоляционными свойствами
Монтаж откосов ПВХ при использовании этого материала происходит быстро и с минимальным количеством мусора. Использование откосов из пвх панелей такого типа обеспечивает защиту окна от промерзания.
Сэндвич-панели имеют следующие характеристики:
- ПВХ обеспечивает надежную тепло- и звукоизоляцию;
- отделка откосов окон этим материалом повышает энергоэффективность оконной системы в целом;
- если правильно сделать откосы из панелей своими руками, то оконный проем обретет опрятный внешний вид;
- отделка окон пластиком своими руками выполняется быстро и эффективно;
- сделать откосы из пластика с утеплителем может даже неподготовленный человек.
Монтаж
Сэндвич-панель может быть прикрепленной так же как и панель ПВХ. Как правильно сделать самому такую отделку, показано ниже.
Устройство откоса с помощью сэндвич-панелей
Как отделать откосы окон пластиком без стартового профиля пошагово, показано ниже.
- такой способ установки актуален при маленьком расстоянии от рамы до проема, когда стартовый профиль попросту некуда монтировать;
- излишки пены аккуратно удаляются. На все стороны проема крепится тонкая рейка;
в данном случае панель устанавливается в пену на 1 см, поэтому последняя подрезается соответствующим образом по всему периметру;Монтаж сэндвич-панелей производится в паз в монтажной пене
- сначала вставляется верхняя деталь в получившийся паз. Немного отгибается, и получившееся пространство покрывается небольшим количеством монтажной пены;
панель крепится саморезами к рейке;Сэндвич-панель закрепляют с помощью саморезов
- таким же образом монтируют боковые фрагменты.
Разновидности
Для достижения исключительно прочного примыкания оконной рамы со штукатуркой, а также для защиты рамы во время монтажных работ – используют примыкающие профили 6 и 9 мм. Выделяют армирующие планки со стеклотканевой сеткой и без неё. Первая используется для наружных работ, вторая – в основном для отделки внутренних откосов.
Профиль ПВХ с сеткой
Это классический вариант армирующего профиля: представляет собой полочку с самоклеющимся уплотнителем и прочной защитной сеткой. Обладает отрывной планкой, служащей для примыкания защитной плёночки, которая предохраняет окна от возможных загрязнений и царапин.
Благодаря её использованию исключается проникновение влаги и плесени. Весьма эстетичный элемент отделки, представляющий собой тонкую и ровную полосу, которой обрамляется оконная рама.
Профиль ПВХ без сетки
Примыкающий профиль без армирующей сетки используется, как правило, для внутренних работ. Однако этот вид профиля можно применять и при внешнем монтаже, но при условии, что дополнительное армирование использоваться не будет.
Одним из популярных и качественных защитных планок данного типа является самоклеющийся профиль без сетки (9 мм) марки BauKom немецкого производства. Примыкающий профиль без сетки облегчает нанесение штукатурки, обеспечивая равномерное покрытие и лёгкость в монтаже.
Самоклеющийся примыкающий профиль с армирующей сеткой и без нее
Дополнить профильный элемент можно уголками ПВХ с сеткой и профилем с открытым капельником. Первый поможет обеспечить дополнительную защиту арочных сводов окон и укрепить углы, второй — ликвидирует возможность скопления влаги в угловых зонах, обеспечивает высокую степень армирование штукатурного слоя и минимизирует количество трещин.
Последовательность работ
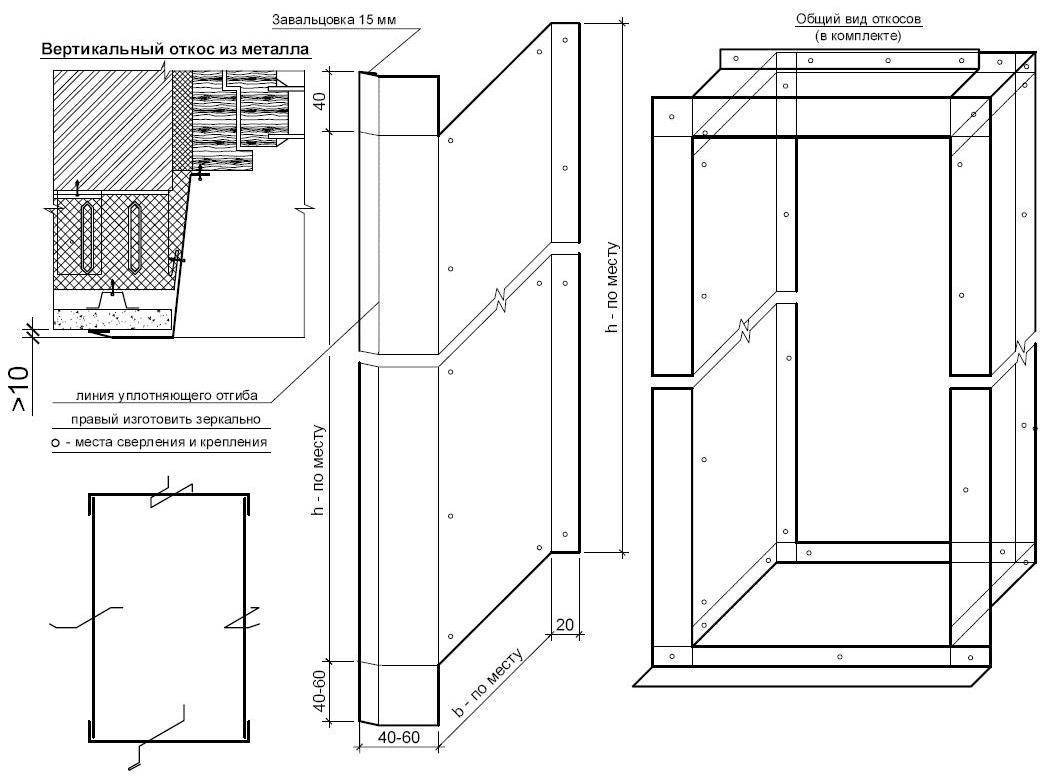
Установка металлических откосов на окна предполагает проведение замерочных работ. Ширина и высота изделия будут соответствовать внутренним и внешним параметрам проема. Изготовление верхнего, нижнего и боковых металлических элементов производится путем вырезания их из заготовленного металлического листа в соответствии с полученными измерениями.
Схема подрезки металлического откоса
Схема подрезки нижнего металлического отлива
Схема подрезки верхнего металлического отлива
На втором этапе работ происходит установка отлива, горизонтальное положение которого контролируется строительным уровнем. Нижний стык стены и оконной рамы оснащается специальным теплоизоляционным материалом и диффузионной лентой для шумоподавления и защиты от влаги.
Сначала необходимо установить отлив
Во время крепления отлива монтажную пену наносят на оконный проем и на отлив с внутренней стороны. Чтобы он не загнулся из-за расширения пены, на время его плотно прижимают. После того как отлив закреплен, приступают к монтажу металлических откосов.
Перед тем как устанавливать металлические откосы, необходимо те места, в которых они будут соприкасаться с рамой окна, обработать герметиком.
Металлические откосы закрепляют с помощью монтажной пены
Сначала устанавливают боковые элементы с соблюдением необходимого уклона изнутри наружу. Верхняя и нижняя части корректируются при помощи ножа в зависимости от уровня наклона.
Боковые элементы должны быть установлены в вертикальном положении и притянуты при помощи шурупов. Верхняя часть подгоняется под боковые элементы. Она выравнивается относительно внешних углов и закрепляется саморезами.
На завершающем этапе все места прилегания обрабатываются герметиком.
При монтаже откосов на фасад из профнастила используют горизонтальные перемычки
В случае когда фасад дома обшит профнастилом, при отделке оконных проемов необходимо использование горизонтальных перемычек. Это боковые полочки, изготовленные из профлиста, которые с одной стороны крепят к стене, а с другой – к металлопрофилю. Стальные наличники придают фасаду завершенность.
Варианты монтажа
Для оформления оконного проема возможно применение следующих способов монтажа:
- Приклеивание уголка на обои – подходит только для простых с гладким рельефом обоев, при глубоком теснении сцепление со стеной будет слабым.
- Профиль крепится к стене, освобождённой от обоев. Для этого нужно поставить его к месту монтажа, выровнять, прижать к стене. Острым ножом срезать полоски обоев под накладкой. Можно сделать разметку карандашом, а потом отрезать. Внутренние поверхности уголка намазать «жидкими» гвоздями или другим клеем, притулить к откосу. Закрепить скотчем, оставить для высыхания на сутки.
Полезные рекомендации от профессионалов
Для того, чтобы не совершить ошибку при выборе того или иного профиля, стоит обратиться в магазин, где продавцы смогут предложить вам готовые комплекты, идеально подходящие для соответствующей ПВХ панели
В обратном случае можно купить конструктивы, которые не будут стыковаться с покрытием или не докупить что-то важное. При покупке следует обязательно учесть, где будет применен такой молдинг, а в зависимости от этого покупать те или иные виды начального профиля
К примеру, если требуется оформлять часть поверхность, где не будет ни проемов окна, ни углов, то требуются лишь те профили, которые формируют обрешетку. Если предстоит оформлять потолки, то не забывайте о потолочных плинтусах. Практически все компании-изготовители выпускают молдинги в белом цвете, что идеально подойдет под любой тип интерьера. но если появилась необходимость в разноцветных моделях, то следует или искать их в специализированных магазинах, или заказать индивидуально. При выборе молдингов из пластика будет хорошо отыскать те, что имеют повышенные характеристики прочности
Если говорить о технических параметрах, то стоит обратить внимание на пазовую ширину, которая предназначена для панели. О том, как производить монтаж ПВХ панелей, смотрите в видеоролике
Как крепить разборный профиль к стене
Такие ситуации бывают редко, но нужно быть к ним готовыми. Сразу скажем, что фиксировать разборные стартовые L-профили сложнее, чем обыкновенные. Вторые просто прислоняются к стене, саморезы с потайными головками или дюбели вкручиваются в площадку между пластинами. Разумеется, что все работы нужно делать по уровню, желательно на стене предварительно отметить месторасположения профиля. А как фиксировать разборный профиль?
Начертите на стене линию, по которой будет устанавливаться профиль
Обращаем ваше внимание, что место крепления должно быть абсолютно ровным, в противном случае во время фиксации профиль будет изгибаться, внешний вид обшивки значительно ухудшится. Если стена по всей площади неровная, то займитесь только этой полосой
Подготовьте немного финишной шпаклевки, лучше пользоваться материалами на основе гипса. В нашем случае прочность не является критичным показателем, главное чтобы она быстро схватывалась. Наносите ее на предварительно очищенную и смоченную стену металлическим шпателем. Для гипсовой шпаклевки достаточно 30–40 минут и можно продолжать строительные работы.
Снимите размеры по высоте стены ванной, подготовьте соответствующий кусок разборного профиля. Отрезать его можно монтажным ножом (довольно неудобно) или болгаркой с тонким диском для резки металла.
Соберите профиль, вставьте лицевую планку в нижнюю, до упора защелкните. Перед сборкой с невидимой стороны нанесите стрелки, они будут ориентиром во время окончательного крепления.
Положите профиль на край ровного стола, в торцевых поверхностях просверлите сквозные отверстия. Чтобы не повредить стол, под профиль нужно подкладывать деревянную рейку шириной 3–4 см и толщиной более сантиметра.
Подготовьте сверло, диаметр должен быть на 1–2 мм больше диаметра саморезов или дюбелей. На расстоянии 50–60 см просверлите сквозные отверстия. Нужно сверлить три плоскости: две в нижней полосе и одну в верхней съемной. Следите, чтобы во время сверления плоскости не смещались, все отверстия должны полностью совпадать по одной оси.
Выньте из защелок лицевую панель, на перпендикулярной плоскости будут отверстия. Монтажным ножом на расстоянии примерно сантиметр по обе стороны от них сделайте надрезы до упора в боковую часть, снизу подрежьте место с отверстием и удалите его. Таким образов расширится свободный участок, входящий в защелки нижней части в местах крепления.
Приставьте к стене профиль, отметьте на ней месторасположения всех отверстий. Работайте очень внимательно, желательно вместе с помощником.
По меткам просверлите отверстия. Соберите профиль, приставьте его к стене и вставьте в отверстия пластиковые части дюбелей
По очереди вкручивайте металлические, при этом соблюдайте максимальную осторожность, не сжимайте разборный профиль с большим усилием. После каждого закрученного дюбеля проверяйте, не клинит ли верхняя лицевая пластина, можно ли ее вытащить и с каким усилием
Следите, чтобы профиль не наклонялся, он должен быть под углом 90° к стене.
Способы отделки откосов

ПВХ и F-профиля для отделки наружного откоса
Откосы бывают внутренними и наружными, и оба этих вида требуют правильной отделки. Конечно, их оформление несет эстетичный характер, ведь внешний вид играет большую роль. Однако это необходимо не только для красоты. Пена, которой заполняется пространство между окном и стеной дома нужно защитить от неблагоприятных условий. Всем известно, что она боится влаги и имеет свойство ее впитывать, после чего разбухает и деформирует пластиковое окно.
Существует несколько способов облагородить внешний вид оконного пространства:
- Оштукатуривание – старый способ отделки, который отнимает много времени и сил. К сожалению он не обладает свойством тепло- и звукоизоляции и со временем может отойти ото поверхности из-за усадки дома. Так как отделочная работа проходит в несколько этапов и требует последующего окрашивания, я решил, что не буду заморачиваться, используя такой вариант.
- Гипсокартоновые – такой вариант лучше, чем первый и если утеплить такие откосы, о они прослужат дольше и будут сохранять тепло в доме. Но один существенный минус заставил меня отказаться от использования гипсокартона – это боязнь влаги. Обязательным условием долгой службы является сухое помещение, в котором присутствует низкий уровень влажности. Да и монтаж таких откосов недалеко ушел от штукатурки, а я уже говорил, что заморачиваться не хотелось-бы.
- Из пвх панелей – простой и доступный способ, который сразу мне приглянулся. Длительный срок службы и быстрая установка подтолкнули меня к выбору пластиковых откосов, а главное – они не боятся влаги.
Когда я решил, какой способ буду использовать, то оставалось познакомиться сдополнительными комплектующими для пвх, и узнать технологию монтажа.
Описание элемента
Данный вид фурнитуры относится к декоративным сопутствующим элементам при отделке пластиковых откосов. Как было отмечено ранее, уголок на окно для откоса может применяться для маскировки стыков углов при работе с различными материалами.

Уголок используется для маскировки стыка откоса и стены
Декоративный пластиковый уголок изготавливается по особым технологиям, когда жесткий лист ПВХ перегибают «горячим» способом.
Виды
Изделие является универсальным и широко применяется при отделке углов и стыков поверхностей, выполненных из различных отделочных материалов. Виды пластиковых уголков различаются по материалу изготовления и могут быть выполнены в трех вариантах.
| Из металла |
|
| Из дерева |
|
| Из пластика |
|
Наибольшую популярность среди потребителей приобрели пластиковые элементы для отделки откосов пластиковых окон. Цветные элементы можно подобрать к любому цветовому решению интерьера. Ламинированная поверхность может имитировать различные материалы.
Где применяют
Пластиковый уголок для откосов широко распространен при разных видах работ. Он может выполнять декоративную и практическую функцию одновременно.
- цветные элементы украшают углы оконных и дверных проемов;
Декоративное украшение оконного проема
- для установки гипсокартонной конструкции понадобятся элементы из металла для фиксации углов. Направляющие металлические уголки применяют при устройстве откосов из штукатурки. Положительное качество такого способа состоит в том, что направляющие не удаляются, а остаются в теле конструкции, обеспечивая ее прочность;
С помощью металлических уголков фиксируют откосы из гипсокартона
- при оклеивании стен обоями наклеенные уголки для откосов будут защищать углы стен от повреждений;
Уголок защищает угол стены от повреждения
- монтаж угловых планок производится для отделки стыков при работе с различными материалами. Элементы могут применяться для наружных откосов.
Наружные стыки также закрывают уголками
Упрощение крепления отлива и подоконника
Отпадает надобность сверлить отверстия непосредственно в раме окна, что, кстати, запрещено производителями. Это может привести не только к попаданию воды внутрь рамного профиля, но и к появлению трещин на раме.

Есть и другие способы крепления этих элементов окна, например с заведением подоконника под раму и привинчиванием отлива к внешней его части, выходящей на улицу. Также водоотлив и подоконник могут быть установлены в специальные пазы, но здесь есть свои нюансы и сложности с расположением подкладок при установке оконного блока, расчисткой пенного шва и т. д. С подставочной планкой процесс значительно упрощается.
Подготовительный этап
Подготовительный этап не слишком сложный, если основная отделка уже выполнена
Если она не была произведена, тогда потребуется уделить особое внимание внешним и внутренним углам откосов пластиковых окон. Для внешних углов обязательным является вывод под 90 градусов, чтобы накладка могла быть зафиксирована по всей плоскости
При работе потребуется следующий инструмент:
строительный нож или ножовка с мелким зубом; рулетка; маркер; клей.
Если поклейка уголка будет производиться на окрашенную поверхность, то есть смысл выполнить ее грунтовку. Это необходимо для повышения адгезии и для уменьшения количества клея, которое уйдет в поры шпаклевки. Загрунтовать необходимо именно тот участок, на который будет приклеиваться уголок, т. к. от грунтовки могут остаться следы
Важно произвести подсчеты общей длины накладок, которые потребуются. Это касается не только внешних углов откосов, но и внутренних узлов примыкания окон к откосам и подоконника к откосам
Исходить необходимо из того, что стандартная длина одной планки находится в пределах трех метров, чаще производители выпускают уголки с длиной в 270 см.
Дополнительно необходимо определиться с тем, какой клей будет использован для крепления уголка. Обычным является применение прозрачного силикона. Он обладает прекрасными адгезионными свойствами и не вступает в реакцию с ПВХ, а также отличается невысокой стоимостью. Недостатком состава является потеря своих свойств со временем. Лучшим решением является применение специального клея для ПВХ, который также хорошо взаимодействует и с другими материалами. Такой клей еще называют «жидким пластиком». В этом случае выбор также должен упасть на прозрачный состав, который исключит появление пятен.
Как сделать откосы из гипсокартона своими руками
Выполненные из гипсокартона откосы — это недорогой вид отделки, который обладает хорошой влагостойкостью.
Необходимые инструменты и материалы
В качестве инструментов нам понадобятся:
- шпатели – различного размера;
- строительный миксер для приготовления клеевого раствора;
- нож монтажный;
- тёрка для обработки гипсокартона;
- ёмкости различного объёма;
- дрель или шуруповёрт.
Необходимые материалы:
- стартовая полоска;
- элементы крепления;
- грунтовка;
- клеящий состав;
- листы гипсокартона;
- краска;
- утеплитель.
Подготовительный этап
Заключается в подготовке объекта для операции, т. е. освобождение свободного доступа к окну, защита пола и стен от загрязнения.
Крепление стартовой полосы
Чтобы лист гипсокартона плотно прилегал к поверхности оконной рамы, нужно по всей конструкции установить пластиковую «стартовую» полосу. В неё будет входит прилегающий к оконной раме торец гипсокартона.
П-образный пластиковый профиль позволит сделать стык между откосом и рамой надежным и аккуратным
Для этого по размеру проёма вырезается верхняя полоса, которая с помощью саморезов крепится «заподлицо» по кромке рамы. Затем проводится замер расстояния от подоконника до верхней полосы по проёму. Аналогичным способом выполняется крепление боковых стартовых полос.
Заготовка панелей
При проведении данной операции нужно быть очень внимательным, чтобы не повредить лист гипсокартона!
В первую очередь следует замерить горизонтальную часть откоса, которая расположена над проёмом сверху. По размеру проводится раскрой листа. Подготовленную заготовку следует установить в паз верхней стартовой полосы и выставить по уровню. Выбрав угол наклона и оптимальное положение, отмечают его карандашом, панель извлекают. Таким же образом проводится замер и подготовка боковых панелей. Когда все заготовки подобраны и места установки отмечены, выполняется грунтование базовых стен составами глубокого проникновения. Также на данном этапе также проводится установка панели в проём и визуальная проверка правильности монтажа.
Подготовка клеящего состава
Лучше всего для фиксации панелей использовать специальные составы, предназначенные для работы с гипсокартоном.
Специальные клеящие смеси отлечно крепят гипсокартон практически к любой поверхности
Процедуру размешивания выполняют в пластиковой таре как вручную, так и при помощи строительного венчика. По своей консистенции клеящий состав должен быть похож на густую сметану.
Установка откосов
При выполнении монтажа верхней панели, с обратной стороны листа, в виде бугорков (с высотой до 100 мм и диаметром 100–150 мм) наносят клеящий состав с шагом 250–300 мм.
При установке верхнего откоса клей нужно наносить на саму гипсокартонную панель
Берётся верхняя панель с нанесённым раствором и прижимается к базовой плоскости согласно ранее сделанным отметкам. Выступающие излишки материала по торцевой части откоса следует разровнять при помощи шпателя. Аналогично проводится монтаж боковых панелей, за тем лишь исключением, что клеевой состав наносится не на гипсокартон, а непосредственно на сам откос.
После нанесения клея, нужно выждать 20–24 минут и заполнить клеевым составом образовавшиеся пустоты.
Видео: как клеить откосы из гипсокартона
Процесс установки откосов из гипсокартона достаточно прост, но, тем не менее, предлагаем вам небольшой видеоролик, который наглядно демонстрирует этот процесс.
Финишная отделка
Наружный угол между откосом и стеной можно закрыть пластиковым уголком
Данный этап заключается в придании эстетичного вида проёму окна. Для этого все неровности и погрешности после установки листов выравниваются при помощи тёрки по гипсокартону, видимые углубления – шпаклюются. Затем поверхность грунтуется и окрашивается.
Хотя технология оформления откосов содержит целый перечень операций, установить их можно и самостоятельно
Важно во время работы выполнять все рекомендации и требования. Правильно установленные и подобранные откосы буду отлично гармонировать с окном и придавать ему завершённый и современный вид. Удачного вам ремонта!







































