Выбор оборудования для изготовления
Наиболее подходящим оборудованием для получения щепы требуемой формы и размеров является специальный деревообрабатывающий шредер. Однако стоимость станка настолько высока, что вне производства приходится искать другие варианты.
Арболит вполне возможно изготавливать в домашних условиях. Для этого и щепу нужно делать самостоятельно. Измельчителем древесины в условиях подсобного хозяйства становится щеподробильный станок. Щепорезы бывают трех типов.
Дисковые рубильные машины обрабатывают древесину различной формы. За счет регулировки наклона режущего инструмента можно получать заготовки требуемого размера.



Во всех перечисленных устройствах предусмотрена только ручная загрузка материала.
Изготавливаем щепорез самостоятельно
Отдельные детали для изготовления по чертежам щепореза своими руками потребуется выточить на токарном станке. Другие же вполне реально смастерить в домашних условиях.
Диск с ножами
Диаметр маховика, представляющего собой диск, должен находиться в пределах от 300 до 350 мм. Толщина его должна составлять 20 мм. Диск функционирует как маховик, это предотвращает застревание в механизмах щепореза больших кусков дерева и исключает незапланированные паузы в работе. По этой причине маховик изделия должен обладать значительным весом.
Для данного узла щепореза потребуется заготовка из металла. На токарном станке или с использованием других приспособлений необходимо пропилить в заготовке отверстие, которое послужит гнездом для установки вала. Также необходимо проделать крепежные отверстия и три паза. Через эти пазы части древесины будут транспортироваться к молоткам.
Для ножей отлично подходят автомобильные рессоры. Каждый будущий нож должен содержать 2 отверстия, которые необходимо зенковать, ведь головки винтов должны сидеть очень плотно.
Следующей операцией является закрепление ножей на диске, которое производится болтами с потайной шляпкой под шестигранник. Такой тип крепления обеспечит надежность соединения и неподвижность болтов во время подкручивания гаек с другой стороны изделия.
Молотки
Молотки представляют собой плоские пластины, располагающиеся на роторе. Толщина этих пластин должна составлять 5 мм. Их задача состоит в дополнительном дроблении деревянной щепы, после работы диска с ножами. Рекомендуется использовать покупные молотки, так как их изготовление своими руками — трудоемкий процесс.
Для изготовления арболитовой щепы расстояние между молотками в составе измельчителя должно составлять 24 мм.
Сито для щепореза
Внутри сита по чертежам размещается камера для растирки. Материалом для сита служит цилиндр из металла диаметром 30-35 см. Для того, чтобы смастерить такой цилиндр потребуется стальной лист длиной 942-1000 мм. В нем нужно пробить отверстия с радиусом 4-6 мм. Эти отверстия рекомендуется проделывать пробойником или иным приспособлением, поскольку их края должны быть неровными и острыми. Поэтому просверливание для данной операции не годиться.
Защитный кожух, воронка, приемный бункер и рама
Для защитного кожуха щепореза, а также воронки приемного бункера изделия сгодятся листы металла толщиной не менее 8-12 мм. Для нарезки нужного размера заготовок применяют чертежи. Удобнее будет подготовить выкройки из плотного материала, например картона, а затем вырезать заготовки уже из металла. Следом производятся сварочные работы для формирования объемного вида изделий и устанавливаются ребра жетскости, в качестве которых используют уголки из металла или трубы.
Стоит учесть, что режущая часть при работе не должна задевать защитный корпус щепореза. Поэтому при его проектировании необходимо оставить зазор, то есть корпус должен иметь больший диаметр, чем режущая часть, на 3-5 см.
Дробильную часть щепореза оборудуют цапфой вала с подшипниками, молотками и режущим диском.
Следующий шаг в изготовлении щепореза предполагает проделывание отверстий для установки вала изделия, а также для подачи древесины и выхода готового продукта.
Устройство, предназначенное для подачи древесины, присоединяется к корпусу под углом, как правило, параллельно полу или станине.
Двигатель
Двигатель является важной частью готового агрегата, так как от его производительности зависит мощность щепореза, изготовленного своими руками, а также величина затрат по его эксплуатации. Электрический мотор имеет ряд преимуществ:. Электрический мотор имеет ряд преимуществ:
Электрический мотор имеет ряд преимуществ:
- производит мало шума
- имеет меньшую массу
- экологичен
- не требует производить заправку
Однако стоит заметить, что зависимость двигателя от перепадов напряжения и привязанность к источнику питания может одним махом перечеркнуть все плюсы.
Бензиновый двигатель обладает большей мощностью и длительностью эксплуатации. При этом он громко работает, загрязняет окружающую среду и требует частой заправки.
Изготавливаем щепорез для арболита своими руками
Для изготовления щепореза из арболита нужно приготовить все необходимые детали, после чего можно начать сборку агрегата. Некоторые детали стоит поискать, другие вполне возможно сделать самостоятельно.
Диск с ножами
Диаметр диска должен быть до 30-35 сантиметров, толщина – 2 сантиметра. Для исключения вероятности заклинивания твердых/больших кусков сырья диск должен работать по принципу маховика, поэтому его делают тяжелым.
Можно взять металлическую заготовку или вырезать ее из куска листовой стали, потом в детали пропиливают одно центральное отверстие (чтобы посадить вал, с учетом шпоночного крепления), также делают несколько монтажных отверстий, 3 паза, посредством которых отрезанные куски дерева будут отправляться под вращающие молотки.
Чтобы сделать ножи, берут автомобильные рессоры, проделывают 2 отверстия в каждом из ножей с последующим их зенкованием (нужно максимально утопить головки винтов), крепят их к диску с помощью болтов со специальной потайной головкой для шестигранника, за счет которых удается создать надежное и плотное соединение. Кроме того, болты в таком случае не смогут поворачиваться при обжатии гаек с другой стороны.
Молотки
Эта деталь представляет собой плоскую пластину толщиной до 5 миллиметров, находящуюся в роторе. Молотки отвечают за дополнительное измельчение сырья, их лучше купить готовыми. Между самими молотками непосредственно в дробилке расстояние должно равняться 24 миллиметрам.
Сито для щепореза
Чтобы сделать сито, внутри которого расположится растирочная камера, берут металлический цилиндр диаметром 30-35 сантиметров, сделанный из листа металла длиной 94.2-100 сантиметров.
В самом цилиндре делают ячейки сечением 8-12 миллиметров, лучше с использованием керна или пробойника (не сверлить), чтобы края ячеек были рваными или острыми.
Защитный кожух, воронка, приемный бункер и рама
Для создания защитного кожуха, приемочной воронки бункера приема может использоваться листовое железо толщиной 8-12 миллиметров. Листы режут в размер, сваривают по чертежу. Детали режут по заранее известным размерам и «выкройкам» (их можно подготовить заранее, используя плотный картон). Ребра жесткости делают из труб, швеллеров либо уголков.
Сам режущий узел даже минимально цепляться за стенки корпуса агрегата на должен, желательно его свободное размещение в корпусе, поэтому оптимальный диаметр маховика делают по величине меньше размера корпуса примерно на 3-5 сантиметров.
Основные детали дробильного узла: это цапфы вала, на которые насаживают опорные подшипники, молотки и режущий диск. Для формирования рабочего вала достаточно вырезать отверстия, входные/выходные раструбы, предназначенные для подачи сырья, выхода щепки.
Бункер для приема сырья приваривают под углом к корпусу. Электрический или механический приводы монтируют на завершающем этапе: крепят на раму электродвигатель, потом шкивы нужного размера, соединяют ременной передачей все узлы. Обычно для этой цели берут обыкновенные автомобильные ремни соответствующего диаметра.
Двигатель
Именно от типа двигателя будут зависеть объемы затрат в эксплуатации, производительность щепореза. Электродвигатель считается наиболее экологичным вариантом, он легче ДВС, издает меньше шума, но и мощность демонстрирует более низкую. Стоит помнить, что щепорез на электротяге будет зависеть от скачков уровня напряжения в сети.
Устройство на более мощном бензиновом двигателе будет работать дольше, производительнее, не требует наличия сети и розетки. Но ДВС издает много шума, существенно загрязняет воздух, предполагает постоянный уход и регулярную заправку.
При условии, что собранный щепорез для арболита спроектирован точно и нет разбега в соосности, можно использовать вместо ременного соединения соосную схему, монтируя подключение вала через муфту.
Общая информация
Перед тем как начать создавать щепорубительную машину своими руками, необходимо разобраться в ее особенностях, принципе работы и предназначении. Щепа является одним из ключевых элементов арболита или щепкобетона — популярного строительного материала, на основе которого создают малоэтажные помещения.Это интересно: технология производства арболита. На рынке арболит продается в виде прямоугольных блоков и содержит в себе цементные смеси марок 400 или 500. В роли дополнительных компонентов используют переработанные древесные отходы, размерами 5×5×25 мм. В числе подобных отходов:
- Опилки.
- Крупная стружка.
- Щепа.
В данном видео рассмотрим как сделать щепорез своими руками:
Именно для производства последнего сырья и разрабатываются специальные щепорубительные установки. Технология создания арболитов на основе щепы выглядит следующим образом:
- Изначально подготовленные отходы древесины заливают водой, тщательно смешивают и перемещают в резервуар на пару часов. После продолжительной выдержки процент содержания клетчатки в сырье заметно снижается, что позволяет создавать на его основе качественные и устойчивые блоки.
- После этого полученную массу помещают в другой резервуар и заливают раствором хлорида кальция и сульфата алюминия. Эти вещества окончательно очистят консистенцию от остатков клетчатки.
- К древесным отходам добавляют цементную смесь и известь в пропорции 3:4:4. Затем следует поместить материал в бетономешалку и перемешать до полурассыпчатого состояния. Продукт должен обладать однородной консистенцией и не содержать в своем составе комков или несмоченных участков.
- В итоге полученную массу выкладывают в специальных формах, которые предварительно смазываются машинным маслом, и выдерживают при комнатной температуре до тех пор, пока она не затвердеет.
Что касается сфер применения арболита в строительстве, то они довольно обширные. На основе этого материала создают перемычки, стеновые конструкции, отдельные элементы полов и даже полноценные фундаментные блоки. В последнем случае к арболиту нужно добавлять цемент более высокой марки.
Такой строительный материал характеризуется высокой прочностью и хорошей теплоемкостью. Ему не страшны температурные скачки или повышение влажности, а огнестойкость и устойчивость к коррозийным процессам остаются на высшем уровне.
Производство щепы для деревобетона своими руками
Выгодней всего построить дом из материала, изготовленного самостоятельно от начала и до конца. Для этого нужно закупить необходимые материалы и оборудование. Щепу можно сделать из дерева, которое приобретается «впрок» и хранится в закрытом от погодных осадков месте, а также из отходов слесарного и лесопроизводства.
Самым главным атрибутом получения щепы являются рубильные машины, еще их называют щепорезами. Они бывают нескольких видов, работа каждого из них немного отличается. Можно приобрести станки:
- молотковые;
- барабанные;
- дисковые.
Окончательный выбор будет зависеть от объемов производства, ведь можно наладить процесс получения щепы своими руками не только для собственных нужд, но и для продажи, этот вид деятельности быстро окупит себя, так как такой материал очень востребован не только при строительстве, но и для отопления жилья, и даже для ландшафтного дизайна.
Перед покупкой любого из приведенных видов устройств, нужно выбрать место его установки, продумать свободный доступ к загрузочному окну устройства, а также каким образом будут собираться щепы, вылетающие с огромной силой из аппарата. Многие этот момент упускают, и мелкий материал разлетается по всему месту производства. Некоторые отводят для него небольшой ангар и после остановки машины собирают полученный материал лопатой.
Изготавливаем щепорез для арболита своими руками
Некоторые детали, чертежи которых представлены ниже, необходимо выточить на токарном станке, остальные можно изготовить своими руками в домашних условиях.
Основные размеры щепореза для арболита
Диск с ножами
Диаметр диска составляет около 300-350 миллиметров, а толщина – около 20 миллиметров. Чтобы предотвратить заклинивание больших и твердых кусков древесины, диск должен работать как маховик. Поэтому его надо сделать тяжелым. Для диска берем металлическую заготовку либо вырезаем его из листовой стали; затем пропиливаем в нем одно центральное отверстие для посадки на вал (учитывая шпоночное крепление), несколько монтажных отверстий и 3 паза, через которые отрезанные части древесины попадают под вращающиеся молотки.
Рубильный диск с ножами
Для изготовления ножей используем автомобильные рессоры. В каждом ноже делаем два отверстия с последующим их зенкованием (чтобы головки винтов были максимально утоплены) и крепим их к диску с помощью болтов с потайной головкой под шестигранник, которые обеспечивают плотное и надежное соединение, а также не позволяют болтам проворачиваться во время обжатия гаек с противоположной стороны.
Молотки
Вал и крепление для молоточков
Молоточки и приваренный отбойник
Молотки – это плоские пластины (толщиной около 5 миллиметров), которые расположены на роторе. Они осуществляют дополнительное измельчение щепы. Молоточки лучше купить готовые. Расстояние между молотками в дробилке арболита 24 мм.
Расстояние между молотками в дробилке арболита
Сито для щепореза
Для изготовления сита, внутри которого будет располагаться растирочная камера, нужен металлический цилиндр Ø 300–350 мм изготавливаемый из металлического листа длиной L 942–1100 мм. В этом цилиндре пробиваются ячейки диаметром 8–12 мм. Просверливать их нежелательно – края ячеек должны быть острыми или рваными, поэтому отверстия рекомендуется проделать пробойником или керном нужного диаметра.
Защитный кожух, воронка, приемный бункер и рама
Для защитного кожуха, и воронки для приемного бункера подойдет листовое железо толщиной 8–12 мм. Листы нарезаются в размер и свариваются в конструкцию так, как указывают чертежи. Нарезаем все детали по заранее подготовленным «выкройкам» (их делаем из плотного картона) Ребра жесткости делаются из уголков, швеллеров или труб.

Защитный кожух
Оборудование дробильного узла: цапфы вала, на которые необходимо насадить опорные подшипники, плюс била (молотки) и режущий диск. Следующий шаг по изготовлению щепореза — нужно вырезать отверстия для рабочего вала, а также входные и выходные раструбы для подачи сырья и выхода щепы.
Рабочий вал
Приемный бункер приваривается к корпусу под углом. Механический и электрический приводы монтируются в последнюю очередь: на раму крепится электродвигатель, затем шкивы требуемого диаметра, и все узлы соединяются ременной передачей. Для этого можно использовать обычные автомобильные ремни подходящего диаметра.
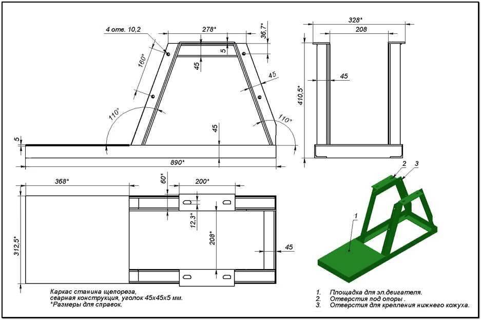
Рама
Двигатель
От вида двигателя зависят производительность щепореза и объемы затрат на эксплуатацию. Экологичный электродвигатель не очень шумит, намного легче ДВС, но менее мощный, чем его «собрат». К тому же работа щепореза на электротяге зависит от скачков напряжения в электросети.
Агрегат на бензиновом, более мощном двигателе, работает дольше, больше и он не зависит от розетки электропитания. Но ДВС очень шумит, загрязняет воздух, требует ухода и его постоянно надо заправлять.
Если собранный щепорез для арболита соответствует требованиям точности и в соосности не будет разбега, то можно применить не ременное соединение, а соосную схему — можно подключить валы через муфту.
Конструкция щепореза для арболита
Если решились сделать щепорез для арболита своими руками, приступаем к изучению чертежей и разбираемся с материалами и инструментами. Независимо от конструкции агрегата, он состоит из следующих основных элементов:
- станины — ее делают из профильной трубы или уголка;
- корпуса — для его изготовления используется листовая сталь;
- рабочего элемента;
- электродвигателя — вместо него может быть бензиновый или дизельный мотор.
Рассмотрим подробнее эти и другие элементы далее.
Корпус дробилки с кожухом
Во время работы механизма корпус должен обеспечивать безопасность оператора, находящихся рядом людей. Для его создания применяют листовую сталь толщиной 1-2,5 мм. Сначала из труб или уголков делают каркас, а затем обшивают его железом.

Для упрощения ремонта, обслуживания агрегата, он должен иметь откидной или съемный кожух. Его делают из того же материала, что и корпус. Дополнительно укрепляют конструкцию при помощи ребер жесткости. Чтобы режущий узел не касался корпуса дробилки, диаметр маховика должен быть меньше размера корпуса на 3-5 см.
Электрический двигатель
При самостоятельном изготовлении такого станка чаще всего используют электрический двигатель. Если же работа будет выполняться вдали от доступа к электроэнергии, придется использовать бензиновый или дизельный мотор.
Электродвигатель работает практически бесшумно, легче ДВС, но его мощность ниже, чем у бензинового или дизельного мотора. Кроме этого, его работа зависит от перепадов напряжения. Чаще всего электромотор подключают при помощи ременного соединения.
Молотки и режущий элемент
Для более качественного измельчения щепы на роторе через каждые 20-25 мм закрепляют плоские пластины (молотки) толщиной 5-6 мм. Эти элементы должны быть одинаковыми, чтобы соблюдалась балансировка вала, поэтому лучше купить уже готовые молотки или изготавливать их с особой точностью.

Режущий диск делают диаметром 30-35 см, а толщиной не менее 2 см. Он будет работать в режиме маховика, что уменьшает вероятность заклинивания вала при попадании щепы между корпусом и диском.
Прочные, надежные ножи получаются с автомобильных рессор. Крепежные отверстия в них делают с потаем, чтобы утопилась головка болта, и надежно фиксируют на диске.
Калибрующее сито
Этот элемент выполнен в виде цилиндра с отверстиями диаметром 8-12 мм. Для их создания лучше использовать пробойник, а не сверло, т.к. края отверстий должны быть острыми и рваными.
Толщина листа, из которого делают калибрующее сито, не менее 5 мм. Для создания цилиндра диаметром 30-35 см понадобится лист длиной 94-110 см.
Подающее устройство
Этот элемент обеспечивает безопасную подачу материала для переработки. Чтобы обезопасить и упростить загрузку, подающее устройство делают под углом, тогда древесина движется к рабочему элементу под собственным весом, исключается ее выбрасывание назад. Бункер делают из листа стали толщиной 1-2,5 мм, на стыках усиливают его уголками или арматурой.

Щепорез для изготовления арболита: принцип работы
Прежде, чем начать делать щепорез для арболита своими руками, следует тщательно изучить чертежи, рассмотреть конструкцию, отыскать все необходимые детали и только после этого собирать их воедино. Главные узлы станка – рубильный диск с ножами, а также ротор с лопастями, молотками. Диск закрепляют на рабочем валу, который в движение приводится шкивом, соединенным с двигателем ремнем. Вал движется на двух подшипниках роликового типа, двигатель смонтирован на раме.
Сырье подают вручную – подлежащее переработке закидывают в приемный бункер, а потом отходы затягиваются под молотки/ножи. На последнем этапе переработки щепа лопастями отправляется на сито, выходит из щепореза через специальное отверстие для выгрузки. На входе приемный бункер сделан в формате воронки, чтобы подавать сырье было просто и безопасно.
Каким характеристикам должен соответствовать щепорез:
- Мощность мотора – около 7.5 кВт.
- Частота вращения мотора на рабочем валу – максиму 3000 оборотов в минуту.
- Оптимальная частота вращения вала, где смонтирован диск с ножами – 1500 оборотов в минуту.
Если увеличивать частоту вращения вала, есть вероятность, что древесное сырье начнет превращаться в труху (вместо того, чтобы получалась щепа нужного размера), но производительность оборудования повышается.
Выбор оборудования для изготовления
Наиболее подходящим оборудованием для получения щепы требуемой формы и размеров является специальный деревообрабатывающий шредер. Однако стоимость станка настолько высока, что вне производства приходится искать другие варианты.
Арболит вполне возможно изготавливать в домашних условиях. Для этого и щепу нужно делать самостоятельно. Измельчителем древесины в условиях подсобного хозяйства становится щеподробильный станок. Щепорезы бывают трех типов.
Дисковые рубильные машины обрабатывают древесину различной формы. За счет регулировки наклона режущего инструмента можно получать заготовки требуемого размера.
Во всех перечисленных устройствах предусмотрена только ручная загрузка материала.
Мобильность станков для изготовления щепы
Щепорезы небольшой мощности не слишком тяжелы (десятки кг), поэтому их переносят поодиночке или вдвоем. Однако модели даже средней мощности (7 кВт и выше) нередко весят 100 кг и больше, поэтому переносить их проблематично. Из-за этого все измельчители можно поделить по типу мобильности на:
- стационарные;
- переносные;
- мобильные (установленные на колесную платформу);
- навесные.
В качестве основы для мобильных измельчителей используют как готовые автомобильные прицепы, так и изготовленные на заказ шасси, полностью соответствующие щепорезу по грузоподъемности и размерам.
Самые мощные щепорезы делают в виде навесных агрегатов на трактор, ведь их вес составляет сотни кг, а для работы необходимо подключение к ВОМ.
Основные узлы щепореза
Необходимые чертежи, по которым для производства арболита может быть изготовлена самодельная роторно-молотковая дробилка, представлены ниже. Так как оборудование самодельное, то и размеры деталей придется подбирать, исходя из собственного материала.

Дробилка для арболита, изготовленная своими руками по желанию может иметь питание в 220–380 В и состоит из следующих узлов:
- Металлический корпус со съемным (или откидным) кожухом (11,12).
- Свободно вращающиеся биты с молотками для производства непосредственно щепы, секторально разделенные отбойниками (6).
- Диск с закрепленными на нем ножами (4).
- Калибрующее сито с отверстиями Ø 15–20 мм (7).
- Бункер для подачи отходов из древесины (9).
Рабочие чертежи разных щепорезов могут отличаться размерами и наличием тех или иных узлов, но принцип работы остается одинаковым. После подачи на оборудование напряжения 220 В электродвигатель предает свое вращение при помощи клиноременной передачи на барабан с лезвиями (4) через шкив (14) и вал. Нужно только закладывать в подающий бункер древесные отходы, которые сразу перерабатываются в щепу оптимальной длины (до 25 мм).
Собрав щепорез для арболита своими руками и выдержав расстояние между молотками в дробилке арболита можно производить щепу длиной до 25 миллиметров и шириной около 5 миллиметров. Такая щепа идеально подходит для изготовления арболитовых блоков или приготовления монолитного арболита.
Где брать детали и материалы?
Поскольку одной из причин, побуждающих к самостоятельному изготовлению шредера, является желание сэкономить, то очень важно сократить траты на детали и материалы. Помочь в этом могут пункты приема черного и цветного лома, а также различные предприятия, на балансе которых есть старая техника
Также могут помочь деревообрабатывающие предприятия и цеха, особенно те, где недавно было модернизировано оборудование
Помочь в этом могут пункты приема черного и цветного лома, а также различные предприятия, на балансе которых есть старая техника. Также могут помочь деревообрабатывающие предприятия и цеха, особенно те, где недавно было модернизировано оборудование.

Для изготовления каркаса роторно-молотковой машины можно использовать стальной уголок или швеллер, причем не обязательно новый, главное, чтобы металл не был поврежден ржавчиной. Корпус станка, он же защитный кожух вокруг роторно-молоткового механизма, а также защитный кожух вокруг ременной или цепной передачи, можно сделать из листового металла толщиной 0,8–2,5 мм.
Этот же металл подойдет для изготовления приемного кожуха. Такой металл можно срезать с кузова некоторых автомобилей, а также из различных ограждений и настилов.
Электромотор можно снять со старого станка или различного электрического оборудования. Возможно, ему потребуется заменить подшипники, но это обойдется дешевле покупки нового электромотора нужной мощности.
Там же можно подобрать и шкивы необходимого размера, а также электрооборудование, необходимое для запуска и работы мотора.
Для изготовления ножей хорошо подойдет рессора от легкового автомобиля. Опытный кузнец сможет придать ей нужную форму и правильно закалить, благодаря чему нож будет не только острым, но и прочным.
Если у вас есть ненужный или временно простаивающий мотоблок, то с него можно снять мотор. Это позволит сделать щепорез более мобильным, особенно если поставить его на прицеп для легкового автомобиля.

Если на моторе предусмотрен вал отбора мощности (ВОМ), то можно подключать щепорез к нему без разборки мотоблока.
Использовать мотор от бензопилы нежелательно из-за недостаточной мощности, исключение составляют лишь бензомоторы с объемом 60 см3 и больше.
Минус мотора из бензопилы в том, что его можно подключить к валу измельчителя лишь через цепную передачу, поэтому довольно сложно найти подходящую цепь и звездочку на вал.
Электромоторы из болгарки, электрорубанка, циркулярки и другого ручного инструмента не подходят для создания нормального измельчителя, зато из них на основе тех же чертежей можно сделать своими руками веткоруб небольшого размера, то есть щепорез, предназначенный для измельчения тонких веток.
От нормального щепореза он отличается размерами и принципом работы. В таком самодельном веткорубе древесину измельчает шестерня с ножами, которая рубит ветки на кусочки длиной 0,5–3 см, то есть нормальную щепу с его помощью не получить, но для утилизации веток он подходит.
Собираем узлы щепореза
Осуществляем сборку в следующей последовательности:
- Собираем рубильный блок: на вал насаживаем подшипники, диск с ножами и молотки;
- Подготавливаем корпус к монтажу: вырезаем отверстия для рабочего вала, приемного бункера и выгрузки щепы;
- Сверлим необходимые отверстия для сборочных болтов и привариваем под углом воронку приемного бункера;
- Производим сборку привода: закрепляем двигатель на раме, монтируем шкивы и надеваем ремень (можно автомобильный);
- Крепим рубильный блок на раму и закрываем защитным корпусом (во избежание несчастных случаев);
- Производим холостой пробный запуск.

Щепорез для арболита в сборе

Если станок нужен исключительно для собственных целей, то есть смысл сделать шепорез для арболита своими руками, так как если приобретать его в заводском исполнении, то обойдется он не очень дешево. Сделанный щепорез можно поставить под навесом на приусадебном участке или в гараже.
По материалам: https://zamesbetona.ru/oborudovanie/shheporez-dlja-arbolita.html https://kamedom.ru/arbolit/chertezhi-stanka-scheporeza.html





































