Обзор и советы по выбору самого важного
Используя современные инструменты, можно быстро и надежно построить каркасный дом. Подробнее остановимся на некоторых инструментах, которые играют самую важную роль в возведении строений по каркасной технологии.
Пилы
Циркулярная пила является одним из важнейших инструментов в строительстве каркасного дома с нуля. С ее помощью можно любой брусок или доску разрезать на две части, запилить, сделать надпил, поменять угол реза, глубину и прочие характеристики.
Удобно иметь стационарную сетевую циркулярку (например, Hitachi) и на аккумуляторах (пример – DeWalt)
При работе с пилой очень важно обращать внимание на глубину пропила и скорость диска. К примеру, для распила доски толщиной 50 мм при угле пропила 45 градусов достаточно одного прохода

Торцовочная пила – это еще один хороший инструмент, который помогает подготовить стойки стен и каркасных лаг перекрытия. Конечно, для выполнения перпендикулярного отреза можно использовать и обычную циркулярную плиту. Но когда это делать нужно многократно, дискомфорт более ощутим, поэтому лучше приобрести торцовочную пилу.
Также рекомендуется запастись несколькими обычными ножовками. Они выручат в тех ситуациях, когда циркулярной пилой становится сложно куда-то добраться. Для удобства работы рекомендуется иметь 2-3 таких пилы с разными зубьями.
Что касается бензопилы и сабельной пилы, при заготовке и обработке пиломатериала для каркасного дома в них нужды нет. Все работы можно выполнить при помощи вышеуказанного оборудования.
Молотки
Один из молотков будет использоваться для сборки чернового каркаса
При его выборе важно обращать внимание на тип бойка. У плотницкого поверхность гладкая, а у кровельного – с насечками

Выбрать основной молоток нужный можно в зависимости от личных предпочтений. Молоток должен быть удобным и надежным, поскольку он выполняет основную работу при сборке каркасного дома. Лучше сразу приобретать качественный вариант.
Второй молоток, который может понадобиться, – финишный. У него гладкий боек, а сам он маленьких размеров. Плюс такого инструмента в том, что он забивает гвозди и штифты в материал, не повреждая его внешнюю часть.
Также на стройке пригодятся кувалды маленьких и больших размеров. Их использование позволяет сократить количество ударов при работе с очень прочными или тяжелыми материалами.
Хорошо себя зарекомендовали нейлеры (или пневматические молотки) фирмы Bostitch реечного типа с наклоном 21 градус. Чтобы такой инструмент работал, нужен воздушный компрессор и электричество. При строительстве каркасного дома придется использовать тысячи гвоздей, а вручную забить их очень тяжело. Нейлер облегчит эту задачу.

Так же, как и у обычных молотков, у нейлеров есть разделения на обычные и финишные. Последние приобретают, если есть необходимость делать много работы по внутренней отделке. Для постройки одного дома реально обойтись и без них. Также можно приобрести скобочники для закрепления наружной обшивки. Но вместо них можно использовать обычные нейлеры с более мелкими гвоздями.
Шуруповерты и дрели
Для строительства каркасного дома своими руками нужно иметь хотя бы два шуруповерта – тяжелый и легкий. Также к ним нужны дополнительные аккумуляторы. Это один из наиболее важных инструментов для строительства каркасного дома.

Кроме того, необходима качественная дрель. Ударная мощь ее вряд ли понадобится, а вот способность делать отверстия под коммуникации, внутреннюю отделку и прочие цели будет очень полезной. Перфоратор используется только на этапе работ с фундаментом.
Рулетки и линейки
Измерительные приспособления лучше приобретать из металла. У таких выше точность и больше срок эксплуатации. Удобны линейки, у которых есть и дюймовая, и метрическая шкала.
Электрорубанки и шлифмашинки
Это недорогие электроинструменты. Что касается рубанка, то его используют на этапе подготовки черновой каркасной стены к оклеиванию гипсокартоном. Если черновой пол имеет неровности, рубанком несложно их сгладить и подровнять стыки.
Шлифмашинка известна еще под названием болгарка. Она способна резать любой металл и камень, что очень актуально в строительстве.

Лестницы, леса, стремянки
Эти помощники должны быть в достаточном количестве и разной высоты. Если денег нет на приобретение лесов, их можно сделать самостоятельно из подручных средств. Но стремянку нужно приобрести – без нее не обойтись.

Конечно, существуют и другие мелкие инструменты, которые могут использоваться в процессе строительства. Но здесь перечислены базовые позиции, без которых сложно построить дом.
Пароизоляционный материал для стен
Пароизоляция предназначена для защиты утеплителя от пара, который может проникнуть в него из жилого помещения. Здесь уже речь идет об изоляции, как о надежном барьере для влаги. Сложная конструкция стены предполагает укладку пароизоляции только с «теплой» стороны.
Самым подходящим вариантом является плотная (не менее 200 микрон) полиэтиленовая пленка. Ее фиксация на каркасе выполняется с помощью строительного степлера.
Пароизоляционный материал необходимо монтировать максимально герметично. Для этого тщательно проклеивают все его стыки, места прокладки коммуникаций.
Теория каркасного строительства
Состав основных элементов каркасного дома Возведение домов всегда начинается с подготовительных действий:
- анализа участка – строения почвы и особенностей поведения грунта;
- проектирования здания – фундамента, расчёта самих конструкций, составляющих элементы будущего дома;
- формирование необходимой документации – чертежей, технологических карт;
- согласования бумаг перед началом строительства в разрешающих органах.
Основная особенность каркасного домостроительства заключается в использовании для основы элементов стен и перекрытий – бруса и металлопрофиля. В качестве наполнения – разные утеплители (минвата, пенопласт), которые закрываются изнутри и снаружи различными панелями – деревянными, металлическими, пластиковыми или комбинированными. Конструкция постепенно монтируется на фундаменте и параллельно обшивается – с внутренней стороны и с внешней. Это позволяет возводить здания небольшим бригадам рабочих – от двух человек, а также не использовать строительную технику – всё делается вручную.
Пример двухэтажного дома 6х6
В результате владелец может получить уникальное строение с необходимыми ему свойствами, что зависит от назначения здания, местного климата и финансовых возможностей.
Плюсы и минусы каркасных домов
В большинстве стран мира каркасное строительство становится всё более популярным с каждым годом. Тому есть несколько причин:
- общая стоимость квадратного метра – самая низкая среди всех прочих способов строительства. Дешевле только картонные дома или палатки;
- универсальность: возможность адаптировать постройку под жаркий и холодный климат, а также возводить простые хозяйственные домики;
- простота обслуживания – не требуется частое обновление фасадов, а ремонт производится так же легко, как и возведение;
- высокая скорость строительства – даже небольшая бригада из 2-4 человек может создать стандартный дом за 3-6 месяцев;
- малая теплоёмкость стен и горизонтальных перегородок – упрощает процесс отопления, себестоимость которого будет минимальной;
- неплохая звукоизоляция – при условии применения надлежащих материалов для утепления;
- каркасные дома самые безопасные – это касается и экологии, и сейсмоустойчивости. Постройки способны выдержать подземные толчки до 8-9 баллов.
Отдельно следует уточнить, что при необходимости можно возвести такой дом, который можно быстро разобрать, перевезти на новое место и снова собрать. Такую мобильность обеспечивает только каркасная и каркасно-модульная схемы строительства.
Но есть и отрицательные моменты:
Для снижения гулкости всей конструкции придётся закладывать в стены тяжёлые виды утеплителей – для дачи это не очень актуально, но дом, который предназначен для постоянного проживания, потребует это сделать.
Надёжный каркасный дом можно возвести лишь после скрупулёзных расчётов. Без соответствующего образования составить правильные чертежи очень трудно, поэтому рекомендуется обращаться к профессионалам. Это потребует выделить часть бюджета для заказа проектной документации, но зато даст гарантию, что дом не развалится через год-два.
Красивые примеры
Может показаться, что каркасный дом даже с современной отделкой смотрится весьма непривлекательно. Но это не так. Достаточно взглянуть на дома, проекты которых поистине удивительны. Особенно впечатляют те, которые построены на участках с неровной местностью. Но такое строительство обойдется дороже, поэтому перед приобретением земли следует рассчитать бюджет.
Хоть технология возведения таких домов очень проста (ведь в основе всего лишь силовой каркас), здание может получиться очень красивым. Это особенно касается каркасных домов, помещения которых отделаны с помощью фотообоев. Если же посмотреть на здание снаружи, то наиболее привлекательно смотрятся те, у которых есть панорамные окна и колонны.


Миф 3. Все каркасные дома строят по одной технологии
Принципиальная схема стены у всех каркасных домов действительно одинаковая: между стойками каркаса находится утеплитель, защищенный с внутренней стороны пароизоляционной пленкой, с наружной — гидроизоляционной супердиффузной (пропускающей пар) мембраной. С обеих сторон каркас и утеплитель защищены жесткой обшивкой, различным листовым материалом: ориентированно-стружечными плитами (ОСП, OSB), цементно-стружечными плитами (ЦСП), водостойкой фанерой, гипсокартонными листами (ГКЛ). Подобным образом устроены и перекрытия.
Однако у разных типов строений есть существенные отличия в способах возведения, материалах и нюансах конструкции. Каркасные дома являются сборными, поскольку их монтируют из заранее изготовленных конструкций, комплект которых привозят на стройплощадку. Производство конструкций обязательно должно быть заводское — такой подход обеспечит точность размеров и комплектность элементов. При этом технология сборки дома может быть различной:
сборка на стройплощадке
На заранее подготовленный фундамент устанавливают каркас стен, обшивают его, заполняют утеплителем, защищают изоляцией. Таким же образом из заготовленных элементов собирают перекрытия, крышу, затем устанавливают окна, двери и т. д. Время сборки на стройплощадке — 3-12 недель. Работа требует тщательности и неукоснительного соблюдения требований монтажа — проконтролировать это неспециалисту сложно.
Строителство каркасного дома из готовых панелей
заводская сборка (каркасно-щитовые дома)
Сборку стен и перекрытий дома производят еще в заводских условиях на специальных технологических линиях, и на стройплощадку привозят уже готовые панели для дома. Они бывают разной степени готовности: от собранной каркасной конструкции до полностью готовых панелей стен (со вставленными окнами и встроенными инженерными коммуникациями), многослойных плит перекрытий и даже крыши. Сборные элементы должны соответствовать проектным размерам с точностью до миллиметра, и на стройплощадке их лишь скрепляют между собой.
Коробку возводят в течение 3-7 дней в зависимости от сложности проекта. В большой степени качество строения зависит от заводской работы. Поэтому компания, поставляющая сборные конструкции, должна иметь безупречную репутацию: тогда надежным будет и здание. Собирать дом должна специально обученная бригада. Однако комплект вместе с подробной инструкцией могут поставлять заказчику для самостоятельной сборки. Такая практика встречается как в зарубежном, так и в отечественном каркасном строительстве. Дома различают по материалу каркаса:
Деревянный каркас
Делают из доски, цельного или клееного бруса (который является самым прочным, качественным и дорогим), а также деревянной двутавровой балки (дерево + ОСП + дерево). Стандартное сечение стойки — 50 х 150 мм. От качества дерева зависит долговечность и прочность дома. Главное требование — влажность пиломатериалов должна быть не выше 18%. Дома с деревянным каркасом наиболее распространены.
Металлический каркас
Выполняют из профилей различной конфигурации, собранных на болтах. Они должны иметь антикоррозийное покрытие (быть оцинкованными или окрашенными). Металлический каркас позволяет устраивать большие пролеты перекрытий и проемы в стенах (в этом с ним может сравниться только каркас из клееного бруса).
Строительство каркасного дома из металлического каркаса
Другие различия между каркасными домами состоят в особенностях конструкции стены. Различными могут быть материалы, толщины и количество слоев утеплителя, обшивки, паро- и гидроизоляции, конструкции перекрытий (по балкам, фермам или панелям). Таким образом, обобщенное название «канадские дома», не описывает всего многообразия каркасных строений.
Можно выделить такие их типы:
- дома с деревянным каркасом и утеплителем из базальтовой ваты и толщиной стены 18-25 см (каркасные и каркасно-щитовые);
- дома с металлическим каркасом, утеплителем из базальтовой ваты и толщиной стены 18-25 см (каркасные);
- каркасно-щитовые дома с утеплителем из пенополистирола и толщиной стены 12-25 см;
- дома премиум-класса с каркасом из клееного бруса, несколькими слоями утеплителя и толщиной стены до 35-40 см.
Резюме: каркасные дома отличаются конструкцией, технологией сборки и теплотехническими свойствами.
Наружная обшивка стен
Каркасные дома принимают немалую нагрузку на основную силовую конструкцию, потому то, из чего делают их стены, немало влияет на надежность здания и срок службы. Грамотно подобранные облицовочные материалы позволят сохранить форму дома на протяжении многих лет, а также успешно противостоять негативным внешним воздействиям.

Плиты ОСБ
ОСБ-3 является влагостойкой ориентированно-стружечной плитой, имеющей повышенную жесткость. Материал производится путем прессования и склеивания 3-4 слоев древесной стружки. Каждый из них имеет свое направление, что задает дополнительную жесткость.

Среди достоинств материала:
- Хорошее соотношение цена/качество;
- С плитами легко работать: резать, сверлить, шлифовать;
- Для крепежа можно использовать гвозди, саморезы, дюбеля и т.п.;
- Кромка плит не крошится даже при близком расположении к краю крепежных элементов;
- Не происходит деформации под воздействием температур либо атмосферных осадков.
Среди недостатков можно выделить плохую паропроницаемость. Стены каркасного дома из ОБС «не дышат».

Кроме того, не стоит забывать, что в качестве клеевого материала для плит используются смолы на синтетической основе. А это означает, что в составе могут быть формальдегиды и фенол. Но стоит заметить, что произведенные по европейским стандартам плиты безопасны для здоровья. Наиболее экологичным считается материал с маркировкой Е0 и Е1.
Цементно-стружечные плиты
ЦСП изготавливается из цемента высоких марок и стружки древесины. Для улучшения характеристик также применяются особые добавки.

Материал обладает следующими достоинствами:
- Влагоустойчив, не боится плесени;
- Не привлекает грызунов;
- Не токсичен, не выделяет вредных веществ, безопасен для здоровья;
- Плохо горит;
- Сохраняет тепло;
- Обладает неплохой паропроницаемостью;
- При облицовке каркаса создает ровную поверхность.
Но нельзя забывать и про недостатки:
- Немалый вес;
- Сложно обрабатывать;
- Для сверления требуется прикладывать немалые усилия;
- В ходе работы много пыли;
- Высокая стоимость.

В каркасном строительстве рекомендуется применять плиты толщиной в 12-18 миллиметров.
ДВП
Спрессованные в плиты волокна древесины и являются так называемым ДВП. Как и в случае с ОСБ, материал имеет многослойную структуру, при том различное направление волокон. Клей в производстве не используется. В ходе прессования под воздействием высокой температуры, смолы, содержащиеся в древесине, скрепляют материал.

Преимущества материала:
- Экологическая чистота;
- Малый вес плит;
- Паропроницаемость.
Недостатком ДВП можно назвать слабую жесткость. При использовании этого материала для обустройства стен каркасного дома требуется монтировать укосины и использовать жесткую облицовку. Для использования в каркасном строительстве подходят плиты толщиной как минимум в 2.5 см.
Фанера
Листы фанеры представляют собой шпон, склеенный из нескольких слоев. Для каркасного дома подойдет фанера, имеющая толщину как минимум в 1.2 сантиметра.

Плюсы материала:
- Устойчивость к низким температурам;
- С ним легко работать;
- Высокие показатели прочности на сжатие;
- Низкая цена.
При том фанера легко горит и содержит в своем составе смолы на синтетической основе, возможно появление сколов.
Инструкция к фундаменту
Поэтапное строительство каркасного дома своими руками начинается с фундамента. Это — основа дома, большая, ровная и прочная «подставка», на которой держится вся каркасная конструкция. Её можно вылить из бетона или собрать из готовых бетонных блоков.
Ленточный фундамент для каркасника.
Каркасное строительство называют «лёгким». Стены каркасника значительно меньше давят на поверхность земли, чем капитальные сооружения из кирпича или монолиты из бетона. Каркас также легче брусового деревянного дома. Поэтому вашему строению понадобится небольшой мелкозаглубленный фундамент, при этом глубину можно сделать на 100-300 мм.
На заметку
Решая, как самому построить каркасный дом своими руками, неизменно сталкиваешься с вопросом выбора конструкций и материалов. Для каркасных строений сооружают мелкозаглубленные ленточные фундаменты или плиты. В некоторых случаях для каркасников делают фундаменты глубокими.
В некоторых случаях для каркасников нужна большая глубина фундамента. Это бывает, когда грунт – зыбкий, подвижный, сыпучий и строение планируется на берегу водоёма. В таком случае устанавливают свайно-винтовой фундамент, который будет опираться на глубокие и неподвижные слои грунта.
Ленточный фундамент
Представляет собой каменную ленту, дорожку, заглубленную в землю на 100-400 мм. Над поверхностью земли фундамент возвышается на 100-300 мм. Таким образом, общая высота ленточного фундамента для каркасного дома составляет 200-700 мм.
Опалубка ленточного фундамента с арматурной сеткой
На заметку
Можно сделать фундамент глубже и выше – но это уже на ваше усмотрение, при желании израсходовать больше строительных материалов и получить более массивную конструкцию основания дома.
Ленту фундамента заливают в подготовленные заранее траншеи. Бетон для заливки можно замешивать самостоятельно. Перед заливкой в траншеи насыпают слой песка и тем самым делается так называемая песчаная подушка (толщина до 100 мм) и укладывают металлические арматуру.
Плитный фундамент
Плитный фундамент также называют плавающим. Каркасный дом будет подниматься и опускаться вместе с ним, при сезонных расширениях грунта . Поэтому плита должна быть достаточно прочной, чтобы можно было возводить здание в два этажа и выше.
Плитный фундамент заливают из бетона и арматуры, при этом арматуру связывают проволокой. Арматурная сетка обеспечивает плите каркасного дома необходимую прочность, жестко фиксируя монолитную плиту.
Расчет фундамента производится по принципу повышенной нагрузки, применяют арматуру разного диаметра. Плюс можно менять расстояние между прутьями, и это поможет увеличить прочность фундамента. Стоимость зависит от сложности работы и потраченных материалов на создание.
Фундамент залит монолитной плитой
Плитное основание можно минимально заглубить в грунт на 100-200 мм, или лить бетон на гравийную подушку без заглубления. Общая высота плиты должна составлять 200-300 мм.
Для плиты фундамента важно обеспечить стойкость к подъёму грунтовой влаги. Поэтому при замешивании бетона в него добавляют водостойкую добавку
Это обеспечит водостойкость бетонной плиты и сухой пол внутри будущего помещения. А также продлит долговечность фундамента и всего строения.
Свайно-винтовой фундамент
Для получения свайно-винтового фундамента можно использовать асбестовые трубы или металлические готовые сваи. Для асбестовых труб готовят ямы, в которые устанавливают трубу и заливают в неё бетон. Предварительно – армируют, т.е. ставят металлическую арматуру внутрь трубы. Металлические сваи вкручивают в землю без вынимания грунта, не выкапывая ямы.
Для того чтобы было легче и понятнее, как монтировать свайно-винтовой фундамент и каркасный дом своими руками – пошаговое фото.
Набор свай для винтового фундамента
Вкручивание свай для фундамента вручную
Соединение винтовых свай фундамента между собой
Свайно-винтовой фундамент
Каркасный дом своими руками
Подготовительные работы необходимы для любого строительства, особенно если вы решили строить каркасный дом, пошаговая инструкция будет вам просто необходима. Если вы продумывали проект дома самостоятельно, то учитывали особенности расположения строения на участке. Если же вы купили готовый проект и решили воплотить его на месте, то понадобится «привязать» строение к вашему рельефу. Как построить каркасный дом, инструкция будет полезна на самых ранних этапах строительства.
Каркасный дом своими руками пошаговое фото.
Подготовка участка
Что понадобится сделать на участке, где строю каркасный дом своими руками:
- Очистить его от старых строений, при их наличии на участке, от строительного мусора и от пней, коряг.
- Обеспечить возможность подвоза строительных материалов, расчистить дорогу для машины и место для разворота.
Навес для хранения досок.
- Продумать места для складирования строительных материалов, если рельеф неровный, они должны располагаться на возвышениях, для защиты от намокания.
- Возможно, участок необходимо выровнять, для этого надо сделать расчет рельефа и вызвать строительную технику.
- Для некоторых участков, где ведется каркасное строительство, дополнительно будет актуальна инструкция, как соорудить забор, чтобы предупредить хищение материалов.
Разметка участка
Под разметкой понимают обозначение расположения будущего строения на местности. Схема каркасного дома переносят на местность с помощью колышек и верёвок. Колышки вколачивают в землю и натягивают между ними верёвку, обозначая расположение будущих наружных стен по периметру.
Разметка участка под строительство.
Тщательно измеряют все углы, соблюдают градусность (чётко обозначенные 90°) и длину стен. Отклонения хотя бы на несколько градусов не допускаются. Они ведут к искривлению строения и неправильному распределению нагрузок. Что в результате может снизить прочность всей конструкции и уменьшить её надёжность.
Полы
Когда все деревянные брусья уложены и связаны друг с другом и с фундаментом, в них формируются пазы и размещаются напольные лаги (доска 50х150 мм). Верхняя часть лаг выверяется по горизонтали, а по низу прибиваются доски — они будут служить основой для устройства чернового пола. На получившееся досчатое основание укладывается мембранная изоляция (не допускает выветривания и намокания утеплителя, при этом не препятствует выходу наружу водяных паров). В промежутки между лагами нужно запрессовать утеплитель (минвату или пенопласт) и укрыть пароизоляцией. Сверху настилается обрезная доска (40х15 мм).
Схема устройства пола
Типы поверхностей
Творческий процесс, знаменующий окончание строительных работ – оформление интерьера. Каркасные дома относятся, в большей степени, к бюджетному строительству, чем к элитному. Отсюда и требования к внутреннему оформлению: не «дорого-богато», а удобно и комфортно.
Основная задача – создание идеальных, ровных поверхностей пола, стен, потолка. Исходя из конструктивных особенностей «каркасников», добиваются этого не с помощью штукатурки, а используя современные листовые материалы. К таким можно отнести:
- Гипсокартон;
- Фанера;
- ДСП;
- ОСП;
На полу допускается применение бетонной стяжки. Чтобы добиться еще большей гладкости, стяжку делают на застеленном фанерой или ОСП основании.
Недостатки стеновых каркасных конструкций
Очень важно выбирать наиболее качественный утеплитель и максимально тщательно его гидроизолировать
Один и главный минус – это скопление влаги в каркасе. Данная проблема может возникнуть в толще утеплительного материала и приведет к тому, что появятся коррозионные бляшки, плесень, сырость. Такой дом простоит недолго.
Поэтому очень важно выбирать наиболее качественный утеплитель и максимально тщательно его гидроизолировать. При этом помнить о том, чтобы теплоизоляция пришлась не по вкусу грызунам, жучкам, не была подвержена гниению и деформации
Как только решится данная проблема, можно строить дом, который подарит не один десяток лет безупречной эксплуатации.
Этапы строительства
Рассмотрев, какую конструкцию имеют внутренние стены каркасного дома, стоит указать, как осуществляется их возведение, проводятся отделочные работы. Проходит сборка постройки в несколько отдельных этапов.
Проектирование
На данном этапе, мастер согласовывает с будущим владельцем объекта все технические моменты, принимается решение по планировке, составляется смета будущего проекта. Определяется на стадии проектирования и толщина стен каркасного дома, которая может доходить до 600 мм. Данное значение устанавливается на основании анализа используемых материалов и компонентов (в первую очередь, утеплителя). К примеру, для регионов, расположенных на севере, потребуется использовать вату толщиной в 200 мм, на юге хватит и 100 мм, учитывая особенность климата.
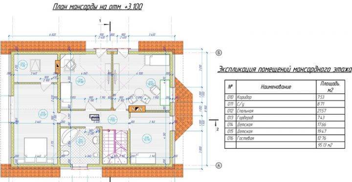
План второго этажа с обозначением помещений.
Подготовка к монтажу
На подготовительном этапе предстоит выполнить регламентированные работы с каркасом
Лучше всего заблаговременно обзавестись древесиной, и обязательно обратить внимание, чтобы материал был обработан специальным антисептическим составом. Лучше всего, если это будут обрезные, нестроганые доски
На фундамент прокладываются слои рубероида, после чего монтируются лежни для нижней обвязки каркасного дома. Сами лаги ставятся на ребро, после чего опираются своими концами на обвязку.
Стены каркасника
Стены для каркасного дома собираются внизу, после чего устанавливаются на нижнюю обвязку посредством щитов. Рекомендуется щиты прикреплять к обвязке исключительно обычными гвоздями, при этом, конструкция не обвалится, в этом можно не сомневаться. Когда правильная каркасная стена дома первого этажа готова, по аналогичной технологии можно возвести и каркас второго этажа. Аналогичным образом, устанавливаются и заготовленные комплекты досок на верхнюю обвязку. Контролируются углы каркасного дома, проверяется правильность их геометрии.
Правильный пирог постройки
Какой утеплитель для стен каркасного дома надо использовать? Одним из важных этапов строительства является утепление стен каркасного дома. Как правило, для этих целей лучше всего использовать пенопласт, однако, это бюджетный вариант, для более солидных по стоимости объектов, можно использовать тот же самый Роквол.
Устройство пирога строения.
Утепление начинается с пола, укладка плит утеплителя осуществляется непосредственно на рейки, предварительно прибитые к лагам. В свою очередь, на лаги необходимо будет постелить пол из листов ОСП, после чего на него можно ставить и сами перегородки и стены.
Как только будут поставлены внешние и внутренние стены каркасного дома, необходимо переходить к выбору материалов для отделки и утепления стен. Утеплитель для стен каркасного дома надо выбрать, чтобы он подходил по всем параметрам: толщина, плотность, долговечность, теплоизоляционные свойства. От выбранного утеплителя будет зависеть толщина стен каркасного дома.
На последних этапах работы выполняется монтаж крыши, обустройство кровли. Следует установить элементы гидроизоляции и необходима ветрозащита для стен каркасного дома, упрочнение готовой конструкции. Для обеспечения надлежащей пароизоляции, принято использовать специальные мембраны, способные сократить вероятность проникновения влаги.
На заметку
Достаточно высоко себя зарекомендовал в качестве материала для пароизоляции и армированный полиэтилен, который ранее активно использовался при строительстве деревянных домов. К его преимуществам стоит отметить небольшую стоимость, для бюджетного строительства это самый лучший вариант.
С недавнего времени широкое применение получили мастики, которые наносятся на стены и пол дома непосредственно до начала внешней отделки. Что примечательно, для нанесения мастики нет необходимости устанавливать обрешетку стен, состав может наноситься в несколько слоев, но нужно дать каждому просохнуть. Когда основная часть работ проведена, «коробка» готова, можно без промедления приступать к отделочным работам внутри помещений.
Толщина каркасных стен: специфика и состав
Что представляет собой строение стены каркасного жилища?
Условно можно представить его примерно таким образом
- Стойки вертикальные;
- Обвязки горизонтальные;
- Материал утепляющий;
- Материал отделочный внутренний и наружный.
Надо заметить, что независимо от конкретного вида конструкции, главный принцип строения у всех стен является одинаковым.
Благодаря ему строение получается надежным и прочным, защищенным от ветра и влаги, имеющим низкую теплоотдачу. Даже в суровых условиях северного климата дом, построенный по означенной технологии, получается теплым, уютным и комфортным. При этом толщина утепления стен в различных случаях может сильно отличаться.
В каркасном строительстве предполагается использование различных технологий. В зависимости от характерных особенностей каждой, требуются различные строительные и отделочные материалы. Выбирают их не только с учетом внешней привлекательности и эстетичности, но с учетом их рабочих и эксплуатационных качеств.
Конструкция каркасного дома
Каркасный дом представляет собой деревянную коробку, с двух сторон которой крепятся листы либо плиты, пространство между которыми заполняется утепляющим материалом. Используемый для отделки материал должен соответствовать следующим основным требованиям:
- прочность;
- оптимальная несущая способность;
- надежность;
- устойчивость к воздействию влаги (в определенных помещениях).

А это значит, что стены внутри каркасного дома являются такими же, как и стены в любых иных сооружениях. Поэтому существует возможность применять любые подходящие материалы для отделки, которые помогут создать комфортную атмосферу в доме.


































